17%
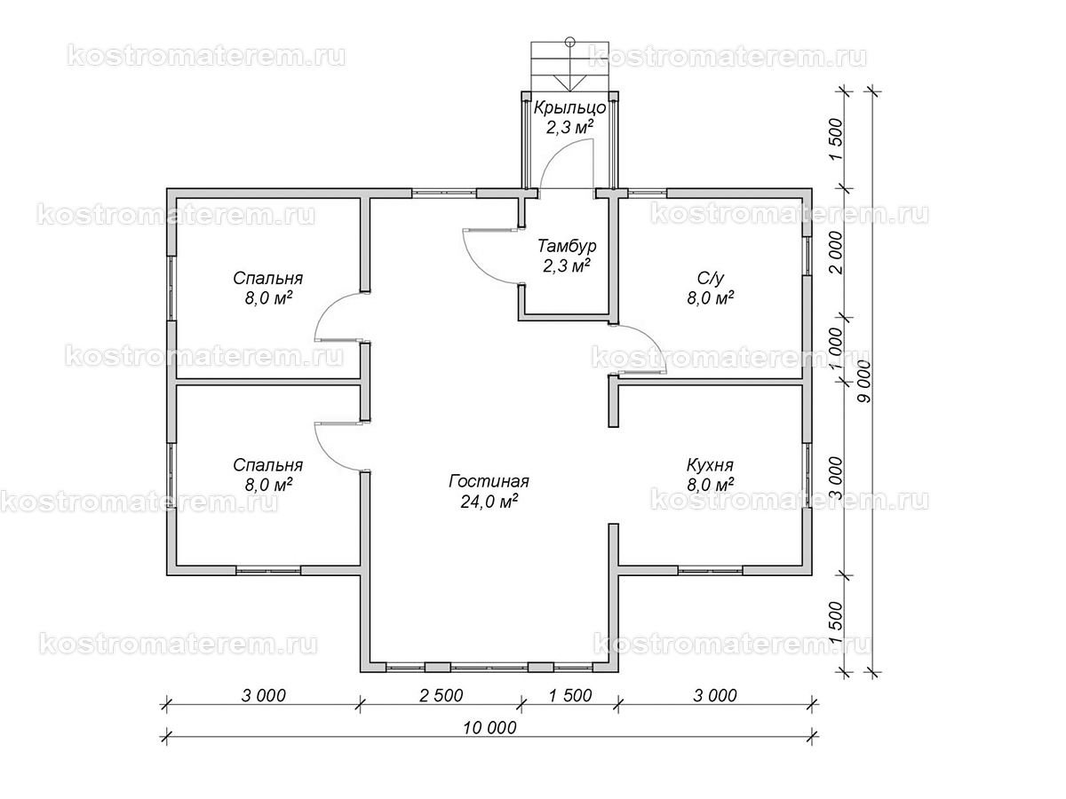
Каркасный дом К-2
Хотите изменить планировку?
Это совсем просто! Свяжитесь с нашим специалистом и на основании Ваших идей он создаст индивидуальные планировки.
Изменить планировкусо скидкой
Выбранная комплектация
| «ТЕПЛЫЙ КОНТУР - 150 мм» | «ПОД КЛЮЧ - 200 мм» |
| 1. ПРОЕКТИРОВАНИЕ: | 1. ПРОЕКТИРОВАНИЕ: |
| 1.1. ПРОЕКТИРОВАНИЕ ДОМА. | 1.1. ПРОЕКТИРОВАНИЕ ДОМА. |
| 1.2. 3D-ВИЗУАЛИЗАЦИЯ ДОМА. | 1.2. 3D-ВИЗУАЛИЗАЦИЯ ДОМА. |
| 1.3. Высота 1 этаж – 2,70 метра. Высота 2 этаж – 2,50 метра. АТТИКОВАЯ СТЕНА – 1,20-1,50 метра. |
1.3. Высота 1 этаж – 2,70 метра. Высота 2 этаж – 2,50 метра. АТТИКОВАЯ СТЕНА – 1,20-1,50 метра. |
| 2. ФУНДАМЕНТ: | 2. ФУНДАМЕНТ: |
| 2.1. СВАЙНО-ВИНТОВОЙ – 108х2500 мм. | 2.1. СВАЙНО-ВИНТОВОЙ – 108х2500 мм. |
| 2.2. Ж/Б-СВАЙНЫЙ – 150х150х3000 мм. | 2.2. Ж/Б-СВАЙНЫЙ – 150х150х3000 мм. |
| 2.3. ГИДРОИЗОЛЯЦИЯ – гидроизол 2 слоя. | 2.3. ГИДРОИЗОЛЯЦИЯ – гидроизол 2 слоя. |
| 3. ОБВЯЗКА: | 3. ОБВЯЗКА: |
| 3.1. БАЛКА – 180х195 мм сборная строганная сухая. Обработка BIOSAT |
3.1. БАЛКА – 180х195 мм сборная строганная сухая. Обработка BIOSAT |
| 4. СТЕНЫ ОСНОВНЫЕ 1 и 2 этаж: | 4. СТЕНЫ ОСНОВНЫЕ 1 и 2 этаж: |
| 4.1. КАРКАС усиленный – Доска 45х145 мм строганная сухая через 590 мм плюс брусок 45х45 мм для вент зазора. | 4.1. КАРКАС усиленный – Доска 45х145 мм строганная сухая через 590 мм плюс брусок 45х45 мм для перекрестного утепления плюс брусок 45х45 мм для вент зазора. |
| 4.2. УТЕПЛЕНИЕ – 150 мм ROCKWOOL, гидро-ветрозащита ИЗОСПАН, пароизоляция ИЗОСПАН. | 4.2. УТЕПЛЕНИЕ – 200 мм ROCKWOOL, гидро-ветрозащита ИЗОСПАН, пароизоляция ИЗОСПАН. |
| 4.3. ОТДЕЛКА СНАРУЖИ – Имитация бруса 20х140 мм (АВ) сухая. | 4.3. ОТДЕЛКА СНАРУЖИ – Имитация бруса 20х140 мм (АВ) сухая. |
| 4.4. ОТДЕЛКА ВНУТРИ – Нет. | 4.4. ОТДЕЛКА ВНУТРИ – Вагонка 16х90 мм (АВ) сухая с плинтусами. |
| 5. СТЕНЫ ВНУТРЕННИЕ 1 и 2 эт: | 5. СТЕНЫ ВНУТРЕННИЕ 1 и 2 эт: |
| 5.1. КАРКАС усиленный – Доска 45х95 мм строганная сухая через 590 мм. | 5.1. КАРКАС усиленный – Доска 45х95 мм строганная сухая через 590 мм. |
| 5.2. УТЕПЛЕНИЕ – Нет. | 5.2. УТЕПЛЕНИЕ – 100 мм ROCKWOOL, ветрозащита ИЗОСПАН. |
| 5.3. ОТДЕЛКА СТЕН – Нет. | 5.3. ОТДЕЛКА СТЕН – Вагонка 16х90 мм (АВ) сухая с плинтусами. |
| 6. ПОЛЫ 1 и 2 эт: | 6. ПОЛЫ 1 и 2 эт: |
| 6.1. ЛАГИ усиленные – Доска 45х195 мм строганная сухая через 590 мм. Обработка BIOSAT | 6.1. ЛАГИ усиленные – Доска 45х195 мм строганная сухая через 590 мм. Обработка BIOSAT |
| 6.2. УТЕПЛЕНИЕ ПОЛЫ 1 этаж – 200 мм ROCKWOOL, ветрозащита ИЗОСПАН, пароизоляция ИЗОСПАН. | 6.2. УТЕПЛЕНИЕ ПОЛЫ 1 этаж – 200 мм ROCKWOOL, ветрозащита ИЗОСПАН, пароизоляция ИЗОСПАН. |
| 6.3. ПОЛЫ черновые 1 этаж – Доска 25х150 мм сухая сплошные. | 6.3. ПОЛЫ 1 и 2 этаж – Шпунтованная доска 35х140 мм (АВ) сухая с плинтусами. |
| 7. ПОТОЛКИ 1 и 2 эт: | 7. ПОТОЛКИ 1 и 2 эт: |
| 7.1. ЛАГИ усиленные – Доска 45х195 мм строганная сухая через 590 мм. | 7.1. ЛАГИ усиленные – Доска 45х195 мм строганная сухая через 590 мм. |
| 7.2. УТЕПЛЕНИЕ ПОТОЛКИ 1 или 2 этаж – 200 мм ROCKWOOL, ветрозащита ИЗОСПАН, пароизоляция ИЗОСПАН. | 7.2. УТЕПЛЕНИЕ ПОТОЛКИ 1 и 2 этаж – 200 мм ROCKWOOL, ветрозащита ИЗОСПАН, пароизоляция ИЗОСПАН. |
| 7.3. ПОТОЛКИ черновые 1 или 2 этаж – Доска 25х150 мм сухая через 100 мм. | 7.3. ПОТОЛКИ 1 и 2 этаж – Вагонка 16х90 мм (АВ) сухая с плинтусами. |
| 8. КРЫША: | 8. КРЫША: |
| 8.1. КРОВЛЯ – МЕТАЛЛОЧЕРЕПИЦА GRAND LINE CLASSIC, толщина 0,50 мм. | 8.1. КРОВЛЯ – МЕТАЛЛОЧЕРЕПИЦА GRAND LINE CLASSIC, толщина 0,50 мм. |
| 8.2. СТРОПИЛЬНАЯ СИСТЕМА усиленная – Доска 45х195 мм строганная сухая через 590 мм плюс брусок 45х45 мм для вент зазора. | 8.2. СТРОПИЛЬНАЯ СИСТЕМА усиленная – Доска 45х195 мм строганная сухая через 590 мм плюс брусок 45х45 мм для вент зазора. |
| 8.3. ОБРЕШЕТКА – Доска 25х100 мм сухая через 200 мм. | 8.3. ОБРЕШЕТКА – Доска 25х100 мм сухая через 200 мм. |
| 8.4. ГИДРО-ВЕТРОЗАЩИТА – Гидро-ветрозащитная мембрана ИЗОСПАН с вентилируемым зазором. | 8.4. ГИДРО-ВЕТРОЗАЩИТА – Гидро-ветрозащитная мембрана ИЗОСПАН с вентилируемым зазором. |
| 8.5. СВЕСЫ КРОВЛИ – Планкен 20х90 мм сухой (АВ). | 8.5. СВЕСЫ КРОВЛИ – Планкен 20х90 мм сухой (АВ). |
| 9. ОКНА: | 9. ОКНА: |
| 9.1. ОКНА ПВХ REHAU (профиль 3-х камерный, стеклопакет 2-х камерный – 3 стекла). Водоотливы, подоконник, наличники. | 9.1. ОКНА ПВХ REHAU (профиль 3-х камерный, стеклопакет 2-х камерный – 3 стекла). Водоотливы, подоконник, наличники. |
| 10. ДВЕРИ: | 10. ДВЕРИ: |
| 10.1. ВХОДНАЯ – металлическая, утепленная, с терморазрывом, производство РФ.Наличники. | 10.1. ВХОДНАЯ – металлическая, утепленная, с терморазрывом, производство РФ.Наличники. |
| 10.2. МЕЖКОМНАТНЫЕ – Нет. | 10.2. МЕЖКОМНАТНЫЕ – деревянные,филенчатые, ламинированные. Наличники. |
| 11. МЕЖЭТАЖНАЯ ЛЕСТНИЦА: | 11. МЕЖЭТАЖНАЯ ЛЕСТНИЦА: |
| 11.1. ЛЕСТНИЦА ТЕХНИЧЕСКАЯ – одномаршевая, доска 50х200 мм строганная сухая. | 11.1. ЛЕСТНИЦА ТЕХНИЧЕСКАЯ – одномаршевая, доска 50х200 мм строганная сухая. |
| 12. ТЕРРАСА, КРЫЛЬЦО, БАЛКОН: | 12. ТЕРРАСА, КРЫЛЬЦО, БАЛКОН: |
| 12.1. КАРКАС – обвязка нижняя, обвязка верхняя, стойки, балки, стропила, обрешетка, кровля, свесы кровли. | 12.1. КАРКАС – обвязка нижняя, обвязка верхняя, стойки, балки, стропила, обрешетка, кровля, свесы кровли. |
| 12.2. ПОЛЫ – Нет. | 12.2. ПОЛЫ – Террасная доска 35х140 мм (АВ) сухая. |
| 12.3. ПОТОЛКИ – Нет. | 12.3. ПОТОЛКИ Планкен 20х90 мм (АВ) сухой. |
| 12.4. ОГРАЖДЕНИЕ – Нет. | 12.4. ОГРАЖДЕНИЕ – Планкен 20х90 мм (АВ) сухой. |
| 13. ДОСТАВКА: | 13. ДОСТАВКА: |
| 13.1. ДОСТАВКА – Рассчитывается индивидуально. | 13.1. ДОСТАВКА – Рассчитывается индивидуально. |
| 14. МОНТАЖ: | 14. МОНТАЖ: |
| 14.1. МОНТАЖ – Сборка дома на участке заказчика. | 14.1. МОНТАЖ – Сборка дома на участке заказчика. |
Всего за 5 шагов у вас появится свой дом
-
Выбор проекта
-
Заключение договора
-
Производство комплекта
-
Доставка и сборка
-
Сдача объекта
Задать вопросы по этому проекту
Оставьте свои контктные данные и наш специалист перезвонит Вам в течение 15-ти минут
Технология строительства
Что о нас говорят клиенты
мастеров
под ключ
круглый год
технологии в строительстве с соблюдением традиций
Вы спрашиваете — мы отвечаем
Производство находится на севере Костромской области, г. Чухлома, цех деревопереработки Нестерово (Вы можете посетить наше производство и получить скидку на строительство дома).
Мы строим деревянные дома по всей территории центральной России, а так же Югу и Северо-Западу.
Начните с выбора проекта, просто позвоните нам по номеру 89109225525 и наш специалист подберет подходящий именно Вам вариант и ответит на все технические вопросы.
В любой из наших проектов можно внести необходимые изменения: сместить/ убрать/добавить перегородки, окна, двери, изменить высоты и комплектацию.
Да, конечно. Можете прислать свой проект на электронную почту kostromaterem@yandex.ru со всеми пожеланиями, мы сделаем расчет стоимости и выберем удобное для Вас время строительства.
Все дома мы строим под ключ. Дома по каркасной технологии строятся под ключ сразу, дома из профилированного бруса и оцилиндрованного бревна строятся с соблюдением сроков усадки дома, после которой делается чистовая отделка под ключ.
Мы строим деревянные дома круглый год. Единственное ограничение по строительству, это изготовление бетонного фундамента при температурах ниже -5 С. Остальные типы фундаментов монтируются круглогодично, как и сами дома.
Строительство дома длится от 14 дней до двух месяцев, в зависимости от величины и сложности проекта.
Древесина хвойных пород: ель, сосна, лиственница, севера Костромской области.
Мы строим деревянные дома как по каркасной технологии, так и из профилированного бруса и оцилиндрованного бревна, с применением заводской нарезки чаш, крепления на пружинный узел СИЛА, межвенцового утеплителя политерм и других технологических решений, применяемых в деревянном домостроении. Совмещая технологии и традиции в единое целое.
Да, мы строим дома из материалов камерной сушки. Сушка производится в конвективных сушильных камерах фирмы KATRES.
Все наши строители это коренные костромичи с большим опытом работы по возведению и отделке деревянных домов, многие не в первом поколении.
Если Вы не можете предоставить бытовку для проживания строительной бригады, то мы привезем материалы и самостоятельно изготовим бытовку, которая впоследствии останется на участке, либо можем воспользоваться услугой арендной бытовки.
Если на участке нет электричества, то для обеспечения электроэнергией мы используем собственные электрогенераторы. Доплачивать за это ничего не нужно.
Мы работаем с материнским капиталом.
Оплата происходит поэтапно, по факту выполненных работ. Все этапы прописываются в договоре на строительство.
Мы уверены в качестве наших материалов и выполняемых работ. Гарантия на силовой каркас и кровлю 24 месяца, на строительство дома под ключ 5 лет. Гарантийные обязательства фиксируются в договоре.
Просто позвоните нам по тел. 89109225525 (WhatsApp, Telegramm) или напишите на электронную почту kostromaterem@yandex.ru. Выезд специалиста для заключения договора в удобное для Вас место и время бесплатно.









