17%
Дом из бруса ДБ-20
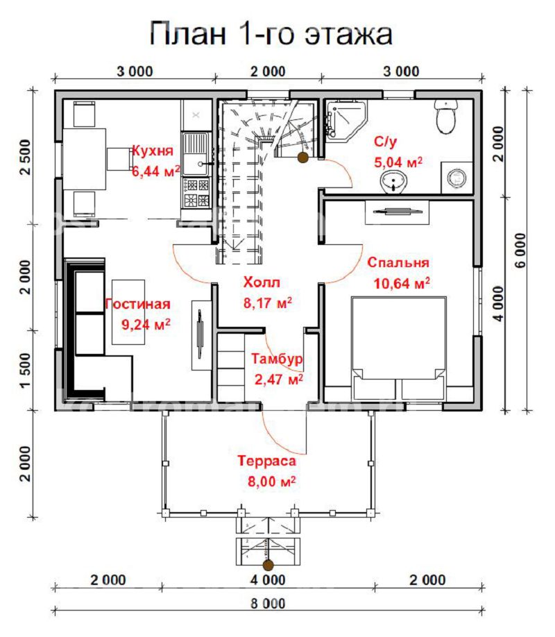
Хотите изменить планировку?
Это совсем просто! Свяжитесь с нашим специалистом и на основании Ваших идей он создаст индивидуальные планировки.
Изменить планировкусо скидкой
Выбранная комплектация
| «БАЗОВАЯ ПОД УСАДКУ» | «УЛУЧШЕННАЯ ПОД УСАДКУ» |
| 1. ПРОЕКТИРОВАНИЕ: | 1. ПРОЕКТИРОВАНИЕ: |
| 1.1. ПРОЕКТИРОВАНИЕ ДОМА. | 1.1. ПРОЕКТИРОВАНИЕ ДОМА. |
| 1.2. 3D-ВИЗУАЛИЗАЦИЯ ДОМА. | 1.2. 3D-ВИЗУАЛИЗАЦИЯ ДОМА. |
| 1.3. Высота 1 этаж – 2,70 метра. Высота 2 этаж – 2,50 метра. АТТИКОВАЯ СТЕНА – 1,20-1,50 метра. |
1.3. Высота 1 этаж – 2,70 метра. Высота 2 этаж – 2,50 метра. АТТИКОВАЯ СТЕНА – 1,20-1,50 метра. |
| 2. ФУНДАМЕНТ: | 2. ФУНДАМЕНТ: |
| 2.0. Свой фундамент. | 2.0. Свой фундамент. |
| 2.1. СВАЙНО-ВИНТОВОЙ – 108х2500 мм. | 2.1. СВАЙНО-ВИНТОВОЙ – 108х2500 мм. |
| 2.2. Ж/Б-СВАЙНЫЙ – 150х150х3000 мм. | 2.2. Ж/Б-СВАЙНЫЙ – 150х150х3000 мм. |
| 2.3.ЛЕНТОЧНЫЙ ФУНДАМЕНТ - 400х1000 ММ | 2.3 ЛЕНТОЧНЫЙ ФУНДАМЕНТ - 400х1000 ММ |
| 2.4. МОНОЛИТНАЯ ПЛИТА. | 2.4. МОНОЛИТНАЯ ПЛИТА. |
| 2.5. ГИДРОИЗОЛЯЦИЯ – гидроизол 2 слоя. | 2.5. ГИДРОИЗОЛЯЦИЯ – гидроизол 2 слоя. |
| 3. ОБВЯЗКА: | 3. ОБВЯЗКА: |
| 3.1. БАЛКА – 150х200 мм. Обработка BIOSAT |
3.1. БАЛКА – 150х200 мм. Обработка BIOSAT |
| 4. СТЕНЫ ОСНОВНЫЕ 1 и 2 этаж: | 4. СТЕНЫ ОСНОВНЫЕ 1 и 2 этаж: |
| 4.1. ОБЫЧНЫЙ БРУС МАССИВ 150Х150 мм, теплый угол ("ласточкин хвост"). Сборка на деревянные нагели. | 4.1. ОБЫЧНЫЙ БРУС МАССИВ 150Х150 мм, теплый угол ("ласточкин хвост"). Сборка на пружинный узел "СИЛА". |
| 4.2. ОБЫЧНЫЙ БРУС МАССИВ 150Х200 мм, теплый угол ("ласточкин хвост"). Сборка на деревянные нагели. | 4.2. ОБЫЧНЫЙ БРУС МАССИВ 150Х200 мм, теплый угол ("ласточкин хвост"). Сборка на пружинный узел "СИЛА". |
| 4.3. ПРОФИЛИРОВАННЫЙ БРУС МАССИВ 140Х140 мм, теплый угол ("ласточкин хвост"). Сборка на деревянные нагели. | 4.3. ПРОФИЛИРОВАННЫЙ БРУС МАССИВ 140Х140 мм, теплый угол ("ласточкин хвост"). Сборка на пружинный узел "СИЛА". |
| 4.4. ПРОФИЛИРОВАННЫЙ БРУС МАССИВ 140Х140 мм КАМЕРНОЙ СУШКИ, теплый угол ("ласточкин хвост"). Сборка на деревянные нагели. | 4.4. ПРОФИЛИРОВАННЫЙ БРУС МАССИВ 140Х140 мм КАМЕРНОЙ СУШКИ, теплый угол ("ласточкин хвост"). Сборка на пружинный узел "СИЛА". |
| 4.5. ПРОФИЛИРОВАННЫЙ БРУС МАССИВ 140Х190 мм, теплый угол ("ласточкин хвост"). Сборка на деревянные нагели. | 4.5. ПРОФИЛИРОВАННЫЙ БРУС МАССИВ 140Х190 мм, теплый угол ("ласточкин хвост"). Сборка на пружинный узел "СИЛА". |
| 4.6. ПРОФИЛИРОВАННЫЙ БРУС МАССИВ 140Х190 мм КАМЕРНОЙ СУШКИ, теплый угол ("ласточкин хвост"). Сборка на деревянные нагели. | 4.6. ПРОФИЛИРОВАННЫЙ БРУС МАССИВ 140Х190 мм КАМЕРНОЙ СУШКИ, теплый угол ("ласточкин хвост"). Сборка на пружинный узел "СИЛА". |
| 5. СТЕНЫ ВНУТРЕННИЕ 1 и 2 эт: | 5. СТЕНЫ ВНУТРЕННИЕ 1 и 2 эт: |
| 5.1. ПРОФИЛИРОВАННЫЙ БРУС МАССИВ 90Х140/140х140 мм. | 5.1. ПРОФИЛИРОВАННЫЙ БРУС МАССИВ 140х140 мм |
| 6. ПОЛЫ 1 и 2 эт: | 6. ПОЛЫ 1 и 2 эт: |
| 6.1. ЛАГИ усиленные – Доска 50х150 мм (брус 100х150 мм) 590 мм (определяется расчетом). Обработка BIOSAT | 6.1. ЛАГИ усиленные – Доска 50х200 мм(брус 100х200 мм) через 590 мм (определяется расчетом). Обработка BIOSAT |
| 6.2. ПОЛЫ черновые 1 этаж – Доска 25х150 мм сухая сплошные. | 6.2. ПОЛЫ черновые 1 этаж – Доска 25х150 мм, сплошные. |
| 7. ПОТОЛКИ 1 и 2 эт: | 7. ПОТОЛКИ 1 и 2 эт: |
| 7.1. ЛАГИ усиленные – Доска 50х150 мм(брус 100х150 мм) 590 мм (определяется расчетом). Обработка BIOSAT | 7.1. ЛАГИ усиленные – Доска 50х200 мм(брус 100х200 мм) через 590 мм (определяется расчетом). Обработка BIOSAT |
| 8. КРЫША: | 8. КРЫША: |
| 8.0. КРОВЛЯ – Рубероид | 8.0. КРОВЛЯ – Рубероид |
| 8.1. КРОВЛЯ – МЕТАЛЛОЧЕРЕПИЦА GRAND LINE CLASSIC, толщина 0,50 мм. | 8.1. КРОВЛЯ – МЕТАЛЛОЧЕРЕПИЦА GRAND LINE CLASSIC, толщина 0,50 мм. |
| 8.2. КРОВЛЯ- ГИБКАЯ ЧЕРЕПИЦА ШИНГЛАСС | 8.2. КРОВЛЯ- ГИБКАЯ ЧЕРЕПИЦА ШИНГЛАСС |
| 8.3. КРОВЛЯ- ОНДУЛИН | 8.3. КРОВЛЯ- ОНДУЛИН |
| 8.4. СТРОПИЛЬНАЯ СИСТЕМА – Доска 50х150 мм, через 590 мм плюс брусок 50х50 мм для вент зазора. | 8.4. СТРОПИЛЬНАЯ СИСТЕМА усиленная – Доска 50х200 мм, через 590 мм плюс брусок 50х50 мм для вент зазора. |
| 8.5. ОБРЕШЕТКА – Доска 25х100 мм, с установелнным шагом. | 8.5. ОБРЕШЕТКА – Доска 25х100 мм, с установелнным шагом. |
| 8.6. ГИДРО-ВЕТРОЗАЩИТА – Гидро-ветрозащитная мембрана ИЗОСПАН с вентилируемым зазором. | 8.6. ГИДРО-ВЕТРОЗАЩИТА – Гидро-ветрозащитная мембрана ИЗОСПАН с вентилируемым зазором. |
| 9. ТЕРРАСА, КРЫЛЬЦО, БАЛКОН: | 9. ТЕРРАСА, КРЫЛЬЦО, БАЛКОН: |
| 9.1. КАРКАС – обвязка нижняя, обвязка верхняя, стойки, балки, стропила, обрешетка, кровля. | 9.1. КАРКАС – обвязка нижняя, обвязка верхняя, стойки, балки, стропила, обрешетка, кровля. |
| 10. ДОСТАВКА: | 10. ДОСТАВКА: |
| 10.1. ДОСТАВКА – Рассчитывается индивидуально. | 10.1. ДОСТАВКА – Рассчитывается индивидуально. |
| 11. МОНТАЖ: | 11. МОНТАЖ: |
| 11.1. МОНТАЖ – Сборка дома на участке заказчика. | 11.1. МОНТАЖ – Сборка дома на участке заказчика. |
Всего за 5 шагов у вас появится свой дом
-
Выбор проекта
-
Заключение договора
-
Производство комплекта
-
Доставка и сборка
-
Сдача объекта
Задать вопросы по этому проекту
Оставьте свои контктные данные и наш специалист перезвонит Вам в течение 15-ти минут
Технология строительства
Что о нас говорят клиенты
мастеров
под ключ
круглый год
технологии в строительстве с соблюдением традиций
Вы спрашиваете — мы отвечаем
Производство находится на севере Костромской области, г. Чухлома, цех деревопереработки Нестерово (Вы можете посетить наше производство и получить скидку на строительство дома).
Мы строим деревянные дома по всей территории центральной России, а так же Югу и Северо-Западу.
Начните с выбора проекта, просто позвоните нам по номеру 89109225525 и наш специалист подберет подходящий именно Вам вариант и ответит на все технические вопросы.
В любой из наших проектов можно внести необходимые изменения: сместить/ убрать/добавить перегородки, окна, двери, изменить высоты и комплектацию.
Да, конечно. Можете прислать свой проект на электронную почту kostromaterem@yandex.ru со всеми пожеланиями, мы сделаем расчет стоимости и выберем удобное для Вас время строительства.
Все дома мы строим под ключ. Дома по каркасной технологии строятся под ключ сразу, дома из профилированного бруса и оцилиндрованного бревна строятся с соблюдением сроков усадки дома, после которой делается чистовая отделка под ключ.
Мы строим деревянные дома круглый год. Единственное ограничение по строительству, это изготовление бетонного фундамента при температурах ниже -5 С. Остальные типы фундаментов монтируются круглогодично, как и сами дома.
Строительство дома длится от 14 дней до двух месяцев, в зависимости от величины и сложности проекта.
Древесина хвойных пород: ель, сосна, лиственница, севера Костромской области.
Мы строим деревянные дома как по каркасной технологии, так и из профилированного бруса и оцилиндрованного бревна, с применением заводской нарезки чаш, крепления на пружинный узел СИЛА, межвенцового утеплителя политерм и других технологических решений, применяемых в деревянном домостроении. Совмещая технологии и традиции в единое целое.
Да, мы строим дома из материалов камерной сушки. Сушка производится в конвективных сушильных камерах фирмы KATRES.
Все наши строители это коренные костромичи с большим опытом работы по возведению и отделке деревянных домов, многие не в первом поколении.
Если Вы не можете предоставить бытовку для проживания строительной бригады, то мы привезем материалы и самостоятельно изготовим бытовку, которая впоследствии останется на участке, либо можем воспользоваться услугой арендной бытовки.
Если на участке нет электричества, то для обеспечения электроэнергией мы используем собственные электрогенераторы. Доплачивать за это ничего не нужно.
Мы работаем с материнским капиталом.
Оплата происходит поэтапно, по факту выполненных работ. Все этапы прописываются в договоре на строительство.
Мы уверены в качестве наших материалов и выполняемых работ. Гарантия на силовой каркас и кровлю 24 месяца, на строительство дома под ключ 5 лет. Гарантийные обязательства фиксируются в договоре.
Просто позвоните нам по тел. 89109225525 (WhatsApp, Telegramm) или напишите на электронную почту kostromaterem@yandex.ru. Выезд специалиста для заключения договора в удобное для Вас место и время бесплатно.









