Дом из оцилиндрованного бревна СБ-4

Фото проекта Фото проекта

Хотите изменить планировку?

Это совсем просто! Свяжитесь с нашим специалистом и на основании Ваших идей он создаст индивидуальные планировки.

Изменить планировку
цена:
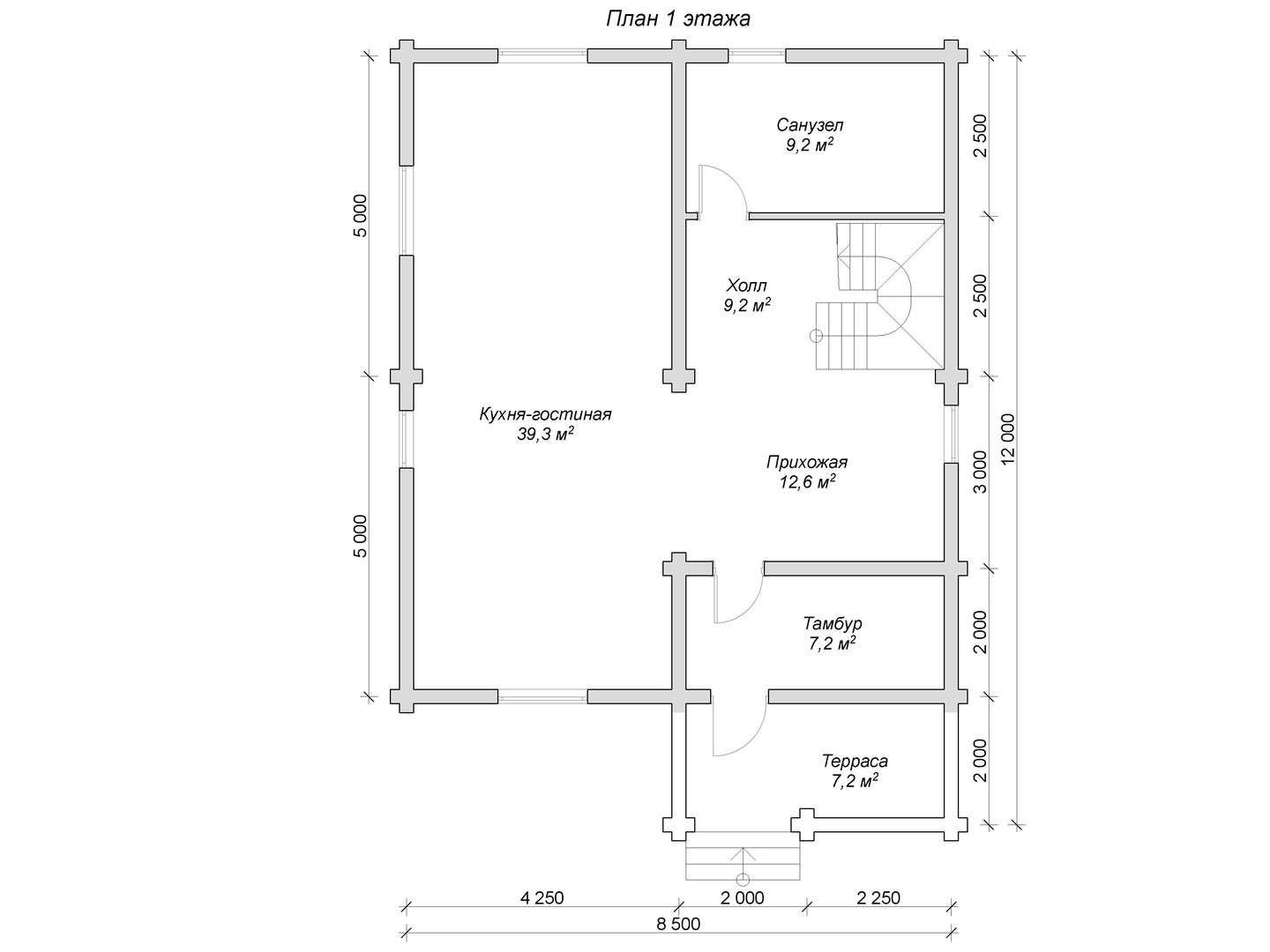
148.8 м
площадь дома
10×8.5
размер дома
2
спальни
2
санузла
1.5 этажа
этажность
Комплектация
Выберите диаметр бревна
Выберите фундамент
Выберите кровлю
Получить смету
Хочу такой дом
со скидкой
[ Комплектация дома ]

Выбранная комплектация

«УЛУЧШЕННАЯ ПОД УСАДКУ»
1. ПРОЕКТИРОВАНИЕ:
1.1. ПРОЕКТИРОВАНИЕ ДОМА.
1.2. 3D-ВИЗУАЛИЗАЦИЯ ДОМА.
1.3. Высота 1 этаж – 2,70 метра.
Высота 2 этаж – 2,50 метра.
АТТИКОВАЯ СТЕНА – 1,20-1,50 метра.
2. ФУНДАМЕНТ:
2.0. Свой фундамент.
2.1. СВАЙНО-ВИНТОВОЙ – 108х2500 мм.
2.2. Ж/Б-СВАЙНЫЙ – 150х150х3000 мм.
2.3.ЛЕНТОЧНЫЙ ФУНДАМЕНТ - 400х1000 ММ
2.4. МОНОЛИТНАЯ ПЛИТА.
2.5. ГИДРОИЗОЛЯЦИЯ – гидроизол 2 слоя.
3. ОБВЯЗКА:
3.1. БАЛКА – 200х200 мм.
Обработка BIOSAT
4. СТЕНЫ ОСНОВНЫЕ И ВНУТРЕННИЕ 1 и 2 этаж:
4.1. ОЦИЛИНДРОВАННОЕ БРЕВНО 220 мм, лунный паз, рубка в чашу, сборка на деревянные нагели.
4.2. ОЦИЛИНДРОВАННОЕ БРЕВНО 240 мм, лунный паз, рубка в чашу, сборка на деревянные нагели.
4.3. ОЦИЛИНДРОВАННОЕ БРЕВНО 260 мм, лунный паз, рубка в чашу, сборка на деревянные нагели.
4.4. ОЦИЛИНДРОВАННОЕ БРЕВНО 280 мм, лунный паз, рубка в чашу, сборка на деревянные нагели.
4.5. ОЦИЛИНДРОВАННОЕ БРЕВНО 300 мм, лунный паз, рубка в чашу, сборка на деревянные нагели.
5. ПОЛЫ 1 и 2 эт:
5.1. ЛАГИ усиленные – Доска 50х200 мм(брус 100х200 мм) через 590 мм (определяется расчетом). Обработка BIOSAT
5.2. ПОЛЫ черновые 1 этаж – Доска 25х150 мм сухая сплошные.
6. ПОТОЛКИ 1 и 2 эт:
6.1. ЛАГИ усиленные – Доска 50х200 мм(брус 100х200 мм) через 590 мм (определяется расчетом). Обработка BIOSAT
7. КРЫША:
7.0. КРОВЛЯ – Рубероид
7.1. КРОВЛЯ – МЕТАЛЛОЧЕРЕПИЦА GRAND LINE CLASSIC, толщина 0,50 мм.
7.2. КРОВЛЯ- ГИБКАЯ ЧЕРЕПИЦА ШИНГЛАСС
7.3. КРОВЛЯ- ОНДУЛИН
7.4. СТРОПИЛЬНАЯ СИСТЕМА усиленная – Доска 50х200 мм, через 590 мм плюс брусок 50х50 мм для вент зазора.
7.5. ОБРЕШЕТКА – Доска 25х100 мм, с установленным шагом.
7.6. ГИДРО-ВЕТРОЗАЩИТА – Гидро-ветрозащитная мембрана ИЗОСПАН с вентилируемым зазором.
8. ТЕРРАСА, КРЫЛЬЦО, БАЛКОН:
8.1. КАРКАС – обвязка нижняя, обвязка верхняя, стойки, балки, стропила, обрешетка, кровля.
9. ДОСТАВКА:
9.1. ДОСТАВКА – Рассчитывается индивидуально.
10. МОНТАЖ:
10.1. МОНТАЖ – Сборка дома на участке заказчика.
Получить смету Схема работы
[ дополнительные опции ]
Возможные дополнительные опции
[ порядок работы ]

Всего за 5 шагов у вас появится свой дом

Иконка
Вы выбираете из 250 готовых проектов
Иконка
Возможны любые доработки проекта
Иконка
Построим по вашему проекту
Фото проекта
Посмотреть более
250 оригинальных
проектов
Смотреть проекты
Фото сотрудника

Задать вопросы по этому проекту

Оставьте свои контктные данные и наш специалист перезвонит Вам в течение 15-ти минут

Задать вопрос

[ 3д разрез дома ]

Технология строительства

Пример дома
[ отзывы ]

Что о нас говорят клиенты

видео отзывы фото отзывы
Фото отзыва

Отзыв по строительству дома в Московской области

Фото отзыва

Отзыв семьи Матвеевых

Фото отзыва

Отзыв Королев Д.Н.

Фото отзыва

Отзыв Савельева А.А

Фото отзыва

Отзыв Александра Московская обл., д. Рузино, д. 51

Фото отзыва

Отзыв Королева Д. Н.

Фото отзыва

Отзыв о строительстве дома из бруса компанией "Кострома-Терем" от заказчика Минеевой Ольги Ив.

Фото отзыва

Отзыв о строительстве брусового дома 8х9 по проекту ДБ-49

Фото отзыва

Отзыв о строительстве дома из бруса в Дзержинец

Фото отзыва

Отзыв по отделке дома под ключ в М.О. Барыбино

Фото отзыва

Отзыв о строительстве дома из профилированного бруса по проекту ДБ-32

Фото отзыва

Отзыв о строительстве дома из бруса по проекту ДБ-20

Фото отзыва

Отзыв по строительству дома ДБ-220

Фото отзыва

Отзыв о строительстве дома из профилированного бруса

Фото отзыва

Отзыв о строительстве дома из бруса

Фото отзыва

Отзыв о строительстве дома из бруса по проекту ДБ-2

Фото отзыва

Отзыв о строительстве дома из бруса

Фото отзыва

Отзыв о строительстве дома из бруса по проекту ДБ-32

Фото отзыва

Отзыв о строительстве дома из бруса Исаева П.Н. Владимирская область д. Якушево

Фото отзыва

Отзыв о строительстве бани из бревна

Фото отзыва

Отзыв о строительстве дома из бруса семьи Кузнецовых МО Красногорский район д. Опалиха

Фото отзыва

Отзыв о строительстве дома из бруса Толмачевых МО Одинцовский район д. Дубки

Фото отзыва

Отзыв по отделке дома ДБ-17 "под ключ"

Фото отзыва

Отзыв Головко В.П.

Фото отзыва

Отзыв семьи Давыдовых из деревни Переславичи

Фото отзыва

Отзыв семьи Давыдовых из деревни Переславичи

Фото отзыва

Отзыв по проекту ДБ-158

Фото отзыва

Отзыв Рощупкина И.Л.

Фото отзыва

Отзыв о строительстве дома по проекту ДБ-52

Фото отзыва

Отзыв о работе строительной компании "Кострома Терем"

Для нас было очень важно оптимальное соотношение "цена-качество", соблюдение всех сроков работ, четко составленный договор, качество профильного сруба

Фото отзыва

Отзыв по строительству дома в Московской области

Фото отзыва

Отзыв семьи Матвеевых

Фото отзыва

Отзыв Королев Д.Н.

Фото отзыва

Отзыв Савельева А.А

Фото отзыва

Отзыв Александра Московская обл., д. Рузино, д. 51

Фото отзыва

Отзыв Королева Д. Н.

Фото отзыва

Отзыв о строительстве дома из бруса компанией "Кострома-Терем" от заказчика Минеевой Ольги Ив.

Фото отзыва

Отзыв о строительстве брусового дома 8х9 по проекту ДБ-49

Фото отзыва

Отзыв о строительстве дома из бруса в Дзержинец

Фото отзыва

Отзыв по отделке дома под ключ в М.О. Барыбино

Фото отзыва

Отзыв о строительстве дома из профилированного бруса по проекту ДБ-32

Фото отзыва

Отзыв о строительстве дома из бруса по проекту ДБ-20

Фото отзыва

Отзыв по строительству дома ДБ-220

Фото отзыва

Отзыв о строительстве дома из профилированного бруса

Фото отзыва

Отзыв о строительстве дома из бруса

Фото отзыва

Отзыв о строительстве дома из бруса по проекту ДБ-2

Фото отзыва

Отзыв о строительстве дома из бруса

Фото отзыва

Отзыв о строительстве дома из бруса по проекту ДБ-32

Фото отзыва

Отзыв о строительстве дома из бруса Исаева П.Н. Владимирская область д. Якушево

Фото отзыва

Отзыв о строительстве бани из бревна

Фото отзыва

Отзыв о строительстве дома из бруса семьи Кузнецовых МО Красногорский район д. Опалиха

Фото отзыва

Отзыв о строительстве дома из бруса Толмачевых МО Одинцовский район д. Дубки

Фото отзыва

Отзыв по отделке дома ДБ-17 "под ключ"

Фото отзыва

Отзыв Головко В.П.

Фото отзыва

Отзыв семьи Давыдовых из деревни Переславичи

Фото отзыва

Отзыв семьи Давыдовых из деревни Переславичи

Фото отзыва

Отзыв по проекту ДБ-158

Фото отзыва

Отзыв Рощупкина И.Л.

Фото отзыва

Отзыв о строительстве дома по проекту ДБ-52

Фото отзыва

Отзыв о работе строительной компании "Кострома Терем"

Для нас было очень важно оптимальное соотношение "цена-качество", соблюдение всех сроков работ, четко составленный договор, качество профильного сруба

Фото отзыва

Отзыв по строительству дома в Московской области

Фото отзыва

Отзыв семьи Матвеевых

Фото отзыва

Отзыв Королев Д.Н.

Фото отзыва

Отзыв Савельева А.А

Фото отзыва

Отзыв Александра Московская обл., д. Рузино, д. 51

Фото отзыва

Отзыв Королева Д. Н.

Фото отзыва

Отзыв о строительстве дома из бруса компанией "Кострома-Терем" от заказчика Минеевой Ольги Ив.

Фото отзыва

Отзыв о строительстве брусового дома 8х9 по проекту ДБ-49

Фото отзыва

Отзыв о строительстве дома из бруса в Дзержинец

Фото отзыва

Отзыв по отделке дома под ключ в М.О. Барыбино

Фото отзыва

Отзыв о строительстве дома из профилированного бруса по проекту ДБ-32

Фото отзыва

Отзыв о строительстве дома из бруса по проекту ДБ-20

Фото отзыва

Отзыв по строительству дома ДБ-220

Фото отзыва

Отзыв о строительстве дома из профилированного бруса

Фото отзыва

Отзыв о строительстве дома из бруса

Фото отзыва

Отзыв о строительстве дома из бруса по проекту ДБ-2

Фото отзыва

Отзыв о строительстве дома из бруса

Фото отзыва

Отзыв о строительстве дома из бруса по проекту ДБ-32

Фото отзыва

Отзыв о строительстве дома из бруса Исаева П.Н. Владимирская область д. Якушево

Фото отзыва

Отзыв о строительстве бани из бревна

Фото отзыва

Отзыв о строительстве дома из бруса семьи Кузнецовых МО Красногорский район д. Опалиха

Фото отзыва

Отзыв о строительстве дома из бруса Толмачевых МО Одинцовский район д. Дубки

Фото отзыва

Отзыв по отделке дома ДБ-17 "под ключ"

Фото отзыва

Отзыв Головко В.П.

Фото отзыва

Отзыв семьи Давыдовых из деревни Переславичи

Фото отзыва

Отзыв семьи Давыдовых из деревни Переславичи

Фото отзыва

Отзыв по проекту ДБ-158

Фото отзыва

Отзыв Рощупкина И.Л.

Фото отзыва

Отзыв о строительстве дома по проекту ДБ-52

Фото отзыва

Отзыв о работе строительной компании "Кострома Терем"

Для нас было очень важно оптимальное соотношение "цена-качество", соблюдение всех сроков работ, четко составленный договор, качество профильного сруба

Фото отзыва

Отзыв по строительству дома в Московской области

Фото отзыва

Отзыв семьи Матвеевых

Фото отзыва

Отзыв Королев Д.Н.

Фото отзыва

Отзыв Савельева А.А

Фото отзыва

Отзыв Александра Московская обл., д. Рузино, д. 51

Фото отзыва

Отзыв Королева Д. Н.

Фото отзыва

Отзыв о строительстве дома из бруса компанией "Кострома-Терем" от заказчика Минеевой Ольги Ив.

Фото отзыва

Отзыв о строительстве брусового дома 8х9 по проекту ДБ-49

Фото отзыва

Отзыв о строительстве дома из бруса в Дзержинец

Фото отзыва

Отзыв по отделке дома под ключ в М.О. Барыбино

Фото отзыва

Отзыв о строительстве дома из профилированного бруса по проекту ДБ-32

Фото отзыва

Отзыв о строительстве дома из бруса по проекту ДБ-20

Фото отзыва

Отзыв по строительству дома ДБ-220

Фото отзыва

Отзыв о строительстве дома из профилированного бруса

Фото отзыва

Отзыв о строительстве дома из бруса

Фото отзыва

Отзыв о строительстве дома из бруса по проекту ДБ-2

Фото отзыва

Отзыв о строительстве дома из бруса

Фото отзыва

Отзыв о строительстве дома из бруса по проекту ДБ-32

Фото отзыва

Отзыв о строительстве дома из бруса Исаева П.Н. Владимирская область д. Якушево

Фото отзыва

Отзыв о строительстве бани из бревна

Фото отзыва

Отзыв о строительстве дома из бруса семьи Кузнецовых МО Красногорский район д. Опалиха

Фото отзыва

Отзыв о строительстве дома из бруса Толмачевых МО Одинцовский район д. Дубки

Фото отзыва

Отзыв по отделке дома ДБ-17 "под ключ"

Фото отзыва

Отзыв Головко В.П.

Фото отзыва

Отзыв семьи Давыдовых из деревни Переславичи

Фото отзыва

Отзыв семьи Давыдовых из деревни Переславичи

Фото отзыва

Отзыв по проекту ДБ-158

Фото отзыва

Отзыв Рощупкина И.Л.

Фото отзыва

Отзыв о строительстве дома по проекту ДБ-52

Фото отзыва

Отзыв о работе строительной компании "Кострома Терем"

Для нас было очень важно оптимальное соотношение "цена-качество", соблюдение всех сроков работ, четко составленный договор, качество профильного сруба

Фото отзыва

Заголовок

предлагает простое решение проблемы ‒ заказать деревянный дом из бруса или оцилиндрованного бревна под ключ по цене ниже средней рыночной. У нас есть множество готовых проектов деревянных домов – как из различных видов бруса.

Фото отзыва

Заголовок

предлагает простое решение проблемы ‒ заказать деревянный дом из бруса или оцилиндрованного бревна под ключ по цене ниже средней рыночной. У нас есть множество готовых проектов деревянных домов – как из различных видов бруса.

Фото отзыва

Заголовок

предлагает простое решение проблемы ‒ заказать деревянный дом из бруса или оцилиндрованного бревна под ключ по цене ниже средней рыночной. У нас есть множество готовых проектов деревянных домов – как из различных видов бруса.

Фото отзыва

Заголовок

предлагает простое решение проблемы ‒ заказать деревянный дом из бруса или оцилиндрованного бревна под ключ по цене ниже средней рыночной. У нас есть множество готовых проектов деревянных домов – как из различных видов бруса.

Фото отзыва

Заголовок

предлагает простое решение проблемы ‒ заказать деревянный дом из бруса или оцилиндрованного бревна под ключ по цене ниже средней рыночной. У нас есть множество готовых проектов деревянных домов – как из различных видов бруса.

Фото отзыва

Заголовок

предлагает простое решение проблемы ‒ заказать деревянный дом из бруса или оцилиндрованного бревна под ключ по цене ниже средней рыночной. У нас есть множество готовых проектов деревянных домов – как из различных видов бруса.

[ похожие проекты ]
Смотрите также похожие проекты
Фото проекта Проект дома ДБ-185
[ 6x8 Размеры дома ]
[ 86.5 м2 площадь дома ]
Фото проекта Проект дома ДБ-185
[ 6x8 Размеры дома ]
[ 86.5 м2 площадь дома ]
Фото проекта Проект дома ДБ-185
[ 6x8 Размеры дома ]
[ 86.5 м2 площадь дома ]
Иконка
Собственное производство полного цикла
Иконка
Квалифицированные бригады
мастеров
Иконка
Строим
под ключ
круглый год
Иконка
Используем новейшие
технологии в строительстве с соблюдением традиций
Иконка
Проектирование, индивидуальный подход к заказчику
Иконка
Гарантия качества
25
лет на рынке
С 1999 года возводим дома для наших клиентов
>970
объектов построено
Каждый месяц мы вводим в эксплуатацию новые дома
>50
сотрудников
Только лучшие талантливые кадры, которых цени
4
направления
Наши проекты - лицо и визитная карточка на рынке ИЖС
[ вопросы и ответы ]

Вы спрашиваете — мы отвечаем

Где находится ваше производство?

Производство находится на севере Костромской области, г. Чухлома, цех деревопереработки Нестерово (Вы можете посетить наше производство и получить скидку на строительство дома).

В каких регионах вы строите дома?

Мы строим деревянные дома по всей территории центральной России, а так же Югу и Северо-Западу.

С чего начать строительство дома?

Начните с выбора проекта, просто позвоните нам по номеру 89109225525 и наш специалист подберет подходящий именно Вам вариант и ответит на все технические вопросы.

Можно ли вносить изменения в ваши проекты?

В любой из наших проектов можно внести необходимые изменения: сместить/ убрать/добавить перегородки, окна, двери, изменить высоты и комплектацию.

Можете построить дом по моему проекту?

Да, конечно. Можете прислать свой проект на электронную почту kostromaterem@yandex.ru со всеми пожеланиями, мы сделаем расчет стоимости и выберем удобное для Вас время строительства.

Вы строите под ключ или под усадку?

Все дома мы строим под ключ. Дома по каркасной технологии строятся под ключ сразу, дома из профилированного бруса и оцилиндрованного бревна строятся с соблюдением сроков усадки дома, после которой делается чистовая отделка под ключ.

В какое время года лучше строить дом?

Мы строим деревянные дома круглый год. Единственное ограничение по строительству, это изготовление бетонного фундамента при температурах ниже -5 С. Остальные типы фундаментов монтируются круглогодично, как и сами дома.

Сколько времени занимает строительство дома?

Строительство дома длится от 14 дней до двух месяцев, в зависимости от величины и сложности проекта.

Какие породы дерева вы используете в строительстве?

Древесина хвойных пород: ель, сосна, лиственница, севера Костромской области.

По какой технологии вы строите дома?

Мы строим деревянные дома как по каркасной технологии, так и из профилированного бруса и оцилиндрованного бревна, с применением заводской нарезки чаш, крепления на пружинный узел СИЛА, межвенцового утеплителя политерм и других технологических решений, применяемых в деревянном домостроении. Совмещая технологии и традиции в единое целое.

Вы строите дома из бруса камерной сушки?

Да, мы строим дома из материалов камерной сушки. Сушка производится в конвективных сушильных камерах фирмы KATRES.

Откуда ваши бригады?

Все наши строители это коренные костромичи с большим опытом работы по возведению и отделке деревянных домов, многие не в первом поколении.

Где будет проживать строительная бригада?

Если Вы не можете предоставить бытовку для проживания строительной бригады, то мы привезем материалы и самостоятельно изготовим бытовку, которая впоследствии останется на участке, либо можем воспользоваться услугой арендной бытовки.

Возможно ли строительство, если на участке нет электричества?

Если на участке нет электричества, то для обеспечения электроэнергией мы используем собственные электрогенераторы. Доплачивать за это ничего не нужно.

Вы работаете с материнским капиталом?

Мы работаем с материнским капиталом.

Как происходит оплата?

Оплата происходит поэтапно, по факту выполненных работ. Все этапы прописываются в договоре на строительство.

Какую гарантию вы предоставляете?

Мы уверены в качестве наших материалов и выполняемых работ. Гарантия на силовой каркас и кровлю 24 месяца, на строительство дома под ключ 5 лет. Гарантийные обязательства фиксируются в договоре.

Как сделать заказ дома в вашей компании?

Просто позвоните нам по тел. 89109225525 (WhatsApp, Telegramm) или напишите на электронную почту kostromaterem@yandex.ru. Выезд специалиста для заключения договора в удобное для Вас место и время бесплатно.