Дом из бруса КБ-17

Фото проекта Фото проекта

Хотите изменить планировку?

Это совсем просто! Свяжитесь с нашим специалистом и на основании Ваших идей он создаст индивидуальные планировки.

Изменить планировку
цена:
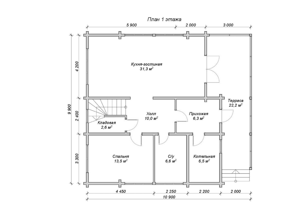
148.4 м
площадь дома
10.9×9.9
размер дома
4
спальни
2
санузла
1.5 этажа
этажность
Комплектация
Комплектации
Клееный брус 140x200 мм
Клееный брус 190x200 мм
Проф.брус МАССИВ КАМЕРНОЙ СУШКИ комплектация УЛУЧШЕННАЯ ПОД УСАДКУ
Выберите фундамент
Выберите кровлю
Получить смету
Хочу такой дом
со скидкой
[ Комплектация дома ]

Выбранная комплектация

«ТЕПЛЫЙ КОНТУР» «ПОД КЛЮЧ» «УЛУЧШЕННАЯ ПОД УСАДКУ»
1. ПРОЕКТИРОВАНИЕ: 1. ПРОЕКТИРОВАНИЕ: 1. ПРОЕКТИРОВАНИЕ:
1.1. ПРОЕКТИРОВАНИЕ ДОМА. 1.1. ПРОЕКТИРОВАНИЕ ДОМА. 1.1. ПРОЕКТИРОВАНИЕ ДОМА.
1.2. 3D-ВИЗУАЛИЗАЦИЯ ДОМА. 1.2. 3D-ВИЗУАЛИЗАЦИЯ ДОМА. 1.2. 3D-ВИЗУАЛИЗАЦИЯ ДОМА.
1.3. Высота 1 этаж – 2,70 метра.
Высота 2 этаж – 2,50 метра.
АТТИКОВАЯ СТЕНА – 1,20-1,50 метра.
1.3. Высота 1 этаж – 2,70 метра.
Высота 2 этаж – 2,50 метра.
АТТИКОВАЯ СТЕНА – 1,20-1,50 метра.
1.3. Высота 1 этаж – 2,70 метра.
Высота 2 этаж – 2,50 метра.
АТТИКОВАЯ СТЕНА – 1,20-1,50 метра.
2. ФУНДАМЕНТ: 2. ФУНДАМЕНТ: 2. ФУНДАМЕНТ:
2.0. Свой фундамент 2.0. Свой фундамент 2.0. Свой фундамент
2.1. СВАЙНО-ВИНТОВОЙ – 108х2500 мм. 2.1. СВАЙНО-ВИНТОВОЙ – 108х2500 мм. 2.1. СВАЙНО-ВИНТОВОЙ – 108х2500 мм.
2.2. Ж/Б-СВАЙНЫЙ – 150х150х3000 мм. 2.2. Ж/Б-СВАЙНЫЙ – 150х150х3000 мм. 2.2. Ж/Б-СВАЙНЫЙ – 150х150х3000 мм.
2.3.ЛЕНТОЧНЫЙ ФУНДАМЕНТ - 400х1000 ММ 2.3 ЛЕНТОЧНЫЙ ФУНДАМЕНТ - 400х1000 ММ 2.3 ЛЕНТОЧНЫЙ ФУНДАМЕНТ - 400х1000 ММ
2.4. МОНОЛИТНАЯ ПЛИТА 2.4. МОНОЛИТНАЯ ПЛИТА 2.4. МОНОЛИТНАЯ ПЛИТА
2.3. ГИДРОИЗОЛЯЦИЯ – гидроизол 2 слоя. 2.3. ГИДРОИЗОЛЯЦИЯ – гидроизол 2 слоя. 2.3. ГИДРОИЗОЛЯЦИЯ – гидроизол 2 слоя.
3. ОБВЯЗКА: 3. ОБВЯЗКА: 3. ОБВЯЗКА:
3.1. БАЛКА – 195х195 мм строганная сухая. Обработка BIOSAT 3.1. БАЛКА – 195х195 мм строганная сухая. Обработка BIOSAT 3.1. БАЛКА – 195х195 мм строганная сухая. Обработка BIOSAT
4. СТЕНЫ ОСНОВНЫЕ 1 и 2 этаж: 4. СТЕНЫ ОСНОВНЫЕ 1 и 2 этаж: 4. СТЕНЫ ОСНОВНЫЕ 1 и 2 этаж:
4.1. КЛЕЕНЫЙ БРУС 140Х200 мм, заводская нарезка чаш. 4.1. КЛЕЕНЫЙ БРУС 140Х200 мм, заводская нарезка чаш. 4.1. Нет
4.2. Нет 4.2. Нет 4.2. ПРОФИЛИРОВАННЫЙ БРУС МАССИВ 140Х140 мм, заводская нарезка чаш. Сборка на пружинный узел "СИЛА"
4.3. КЛЕЕНЫЙ БРУС 190Х200 мм, заводская нарезка чаш. 4.3. КЛЕЕНЫЙ БРУС 190Х200 мм, заводская нарезка чаш. 4.3. Нет
4.4. Нет 4.4. Нет 4.4. ПРОФИЛИРОВАННЫЙ БРУС МАССИВ 140Х190 мм, заводская нарезка чаш. Сборка на пружинный узел "СИЛА"
5. СТЕНЫ ВНУТРЕННИЕ 1 и 2 эт: 5. СТЕНЫ ВНУТРЕННИЕ 1 и 2 эт: 5. СТЕНЫ ВНУТРЕННИЕ 1 и 2 эт:
5.1. КЛЕЕНЫЙ БРУС 140Х200 мм, заводская нарезка чаш. 5.1. КЛЕЕНЫЙ БРУС 140Х200 мм, заводская нарезка чаш. 5.1. Нет
5.2. Нет 5.2. Нет 5.2. ПРОФИЛИРОВАННЫЙ БРУС МАССИВ 140Х140 мм, заводская нарезка чаш.
5.3. КЛЕЕНЫЙ БРУС 190Х200 мм, заводская нарезка чаш. 5.3. КЛЕЕНЫЙ БРУС 190Х200 мм, заводская нарезка чаш. 5.3. Нет
5.4. Нет 5.4. Нет 5.4. ПРОФИЛИРОВАННЫЙ БРУС МАССИВ 140Х190 мм, заводская нарезка чаш.
6. ПОЛЫ 1 и 2 эт: 6. ПОЛЫ 1 и 2 эт: 6. ПОЛЫ 1 и 2 эт:
6.1. ЛАГИ усиленные – Доска 45х195 мм(брус 95х195 мм) строганная сухая через 590 мм (определяется расчетом). Обработка BIOSATT 6.1. ЛАГИ усиленные – Доска 45х195 мм(брус 95х195 мм) строганная сухая через 590 мм (определяется расчетом). Обработка BIOSAT 6.1. ЛАГИ усиленные – Доска 45х195 мм(брус 95х195 мм) строганная сухая через 590 мм (определяется расчетом). Обработка BIOSAT
6.2. УТЕПЛЕНИЕ ПОЛЫ 1 этаж – 200 мм ROCKWOOL, ветрозащита ИЗОСПАН, пароизоляция ИЗОСПАН. 6.2. УТЕПЛЕНИЕ ПОЛЫ 1 этаж – 200 мм ROCKWOOL, ветрозащита ИЗОСПАН, пароизоляция ИЗОСПАН. 6.2. УТЕПЛЕНИЕ ПОЛЫ 1 этаж – нет.
6.3. ПОЛЫ черновые 1 этаж – Доска 25х150 мм сухая сплошные. 6.3. ПОЛЫ черновые 1 этаж – Доска 25х150 мм сухая сплошные. 6.3. ПОЛЫ черновые 1 этаж – Доска 25х150 мм сухая сплошные.
6.4. ПОЛЫ 1 и 2 этаж – нет. 6.4. ПОЛЫ 1 и 2 этаж – Шпунтованная доска 35х140 мм (АВ) сухая с плинтусами. 6.4. ПОЛЫ 1 и 2 этаж – нет.
7. ПОТОЛКИ 1 и 2 эт: 7. ПОТОЛКИ 1 и 2 эт: 7. ПОТОЛКИ 1 и 2 эт:
7.1. ЛАГИ усиленные – Доска 45х195 мм(брус 95х195 мм) строганная сухая через 590 мм (определяется расчетом). Обработка BIOSAT. 7.1. ЛАГИ усиленные – Доска 45х195 мм(брус 95х195 мм) строганная сухая через 590 мм (определяется расчетом). Обработка BIOSAT 7.1. ЛАГИ усиленные – Доска 45х195 мм(брус 95х195 мм) строганная сухая через 590 мм (определяется расчетом). Обработка BIOSAT
7.2. УТЕПЛЕНИЕ ПОТОЛКИ 1 и 2 этаж – 200 мм ROCKWOOL, ветрозащита ИЗОСПАН, пароизоляция ИЗОСПАН. 7.2. УТЕПЛЕНИЕ ПОТОЛКИ 1 и 2 этаж – 200 мм ROCKWOOL, ветрозащита ИЗОСПАН, пароизоляция ИЗОСПАН. 7.2. УТЕПЛЕНИЕ ПОТОЛКИ 1 и 2 этаж – нет.
7.3. ПОТОЛКИ черновые 1 или 2 этаж – Доска 25х150 мм сухая через 100 мм. 7.3. ПОТОЛКИ черновые 1 или 2 этаж – нет. 7.3. ПОТОЛКИ черновые 1 или 2 этаж – нет.
7.4. ПОТОЛКИ 1 и 2 этаж – нет. 7.4. ПОТОЛКИ 1 и 2 этаж – Вагонка 16х90 мм (АВ) сухая с плинтусами. 7.4. ПОТОЛКИ 1 и 2 этаж – нет.
8. КРЫША: 8. КРЫША: 8. КРЫША:
8.0. КРОВЛЯ – Рубероид 8.0. КРОВЛЯ – Рубероид 8.0. КРОВЛЯ – Рубероид
8.1. КРОВЛЯ – МЕТАЛЛОЧЕРЕПИЦА GRAND LINE CLASSIC, толщина 0,50 мм. 8.1. КРОВЛЯ – МЕТАЛЛОЧЕРЕПИЦА GRAND LINE CLASSIC, толщина 0,50 мм. 8.1. КРОВЛЯ – МЕТАЛЛОЧЕРЕПИЦА GRAND LINE CLASSIC, толщина 0,50 мм.
8.2. КРОВЛЯ- ГИБКАЯ ЧЕРЕПИЦА ШИНГЛАСС 8.2. КРОВЛЯ- ГИБКАЯ ЧЕРЕПИЦА ШИНГЛАСС 8.2. КРОВЛЯ- ГИБКАЯ ЧЕРЕПИЦА ШИНГЛАСС
8.3. КРОВЛЯ- ОНДУЛИН 8.3. КРОВЛЯ- ОНДУЛИН 8.3. КРОВЛЯ- ОНДУЛИН
8.4. СТРОПИЛЬНАЯ СИСТЕМА усиленная – Доска 45х195 мм строганная сухая через 590 мм плюс брусок 45х45 мм для вент зазора. 8.4. СТРОПИЛЬНАЯ СИСТЕМА усиленная – Доска 45х195 мм строганная сухая через 590 мм плюс брусок 45х45 мм для вент зазора. 8.4. СТРОПИЛЬНАЯ СИСТЕМА усиленная – Доска 45х195 мм строганная сухая через 590 мм плюс брусок 45х45 мм для вент зазора.
8.5. ОБРЕШЕТКА – Доска 25х100 мм сухая, с установелнным шагом. 8.5. ОБРЕШЕТКА – Доска 25х100 мм сухая, с установелнным шагом. 8.5. ОБРЕШЕТКА – Доска 25х100 мм сухая, с установелнным шагом.
8.6. ГИДРО-ВЕТРОЗАЩИТА – Гидро-ветрозащитная мембрана ИЗОСПАН с вентилируемым зазором. 8.6. ГИДРО-ВЕТРОЗАЩИТА – Гидро-ветрозащитная мембрана ИЗОСПАН с вентилируемым зазором. 8.6. ГИДРО-ВЕТРОЗАЩИТА – Гидро-ветрозащитная мембрана ИЗОСПАН с вентилируемым зазором.
8.7. СВЕСЫ КРОВЛИ – нет. 8.7. СВЕСЫ КРОВЛИ – Планкен 20х90 мм сухой (АВ). 8.7. СВЕСЫ КРОВЛИ – нет.
9. ОКНА: 9. ОКНА: 9. ОКНА:
9.1. ОКНА ПВХ REHAU (профиль 3-х камерный, стеклопакет 2-х камерный – 3 стекла). Водоотливы, подоконник, наличники. 9.1. ОКНА ПВХ REHAU (профиль 3-х камерный, стеклопакет 2-х камерный – 3 стекла). Водоотливы, подоконник, наличники. 9.1. ОКНА - нет.
10. ДВЕРИ: 10. ДВЕРИ: 10. ДВЕРИ:
10.1. ВХОДНАЯ – металлическая, утепленная, с терморазрывом, производство РФ.Наличники. 10.1. ВХОДНАЯ – металлическая, утепленная, с терморазрывом, производство РФ.Наличники. 10.1. ВХОДНАЯ - нет .
10.2. МЕЖКОМНАТНЫЕ – Нет. 10.2. МЕЖКОМНАТНЫЕ – деревянные,филенчатые, ламинированные. Наличники. 10.2. МЕЖКОМНАТНЫЕ – Нет.
11. МЕЖЭТАЖНАЯ ЛЕСТНИЦА: 11. МЕЖЭТАЖНАЯ ЛЕСТНИЦА: 11. МЕЖЭТАЖНАЯ ЛЕСТНИЦА:
11.1. ЛЕСТНИЦА ТЕХНИЧЕСКАЯ – одномаршевая, доска 50х200 мм строганная сухая. 11.1. ЛЕСТНИЦА ТЕХНИЧЕСКАЯ – одномаршевая, доска 50х200 мм строганная сухая. 11.1. ЛЕСТНИЦА ТЕХНИЧЕСКАЯ – нет.
12. ТЕРРАСА, КРЫЛЬЦО, БАЛКОН: 12. ТЕРРАСА, КРЫЛЬЦО, БАЛКОН: 12. ТЕРРАСА, КРЫЛЬЦО, БАЛКОН:
12.1. КАРКАС – обвязка нижняя, обвязка верхняя, стойки, балки, стропила, обрешетка, кровля, свесы кровли. 12.1. КАРКАС – обвязка нижняя, обвязка верхняя, стойки, балки, стропила, обрешетка, кровля, свесы кровли. 12.1. КАРКАС – обвязка нижняя, обвязка верхняя, стойки, балки, стропила, обрешетка, кровля, свесы кровли.
12.2. ПОЛЫ – Нет. 12.2. ПОЛЫ – Террасная доска 35х140 мм (АВ) сухая. 12.2. ПОЛЫ – Нет.
12.3. ПОТОЛКИ – Нет. 12.3. ПОТОЛКИ Планкен 20х90 мм (АВ) сухой. 12.3. ПОТОЛКИ – Нет.
12.4. ОГРАЖДЕНИЕ – Нет. 12.4. ОГРАЖДЕНИЕ – Планкен 20х90 мм (АВ) сухой. 12.4. ОГРАЖДЕНИЕ – Нет.
13. ДОСТАВКА: 13. ДОСТАВКА: 13. ДОСТАВКА:
13.1. ДОСТАВКА – Рассчитывается индивидуально. 13.1. ДОСТАВКА – Рассчитывается индивидуально. 13.1. ДОСТАВКА – Рассчитывается индивидуально.
14. МОНТАЖ: 14. МОНТАЖ: 14. МОНТАЖ:
14.1. МОНТАЖ – Сборка дома на участке заказчика. 14.1. МОНТАЖ – Сборка дома на участке заказчика. 14.1. МОНТАЖ – Сборка дома на участке заказчика.
Получить смету Схема работы
[ дополнительные опции ]
Возможные дополнительные опции
[ порядок работы ]

Всего за 5 шагов у вас появится свой дом

Иконка
Вы выбираете из 250 готовых проектов
Иконка
Возможны любые доработки проекта
Иконка
Построим по вашему проекту
Фото проекта
Посмотреть более
250 оригинальных
проектов
Смотреть проекты
Фото сотрудника

Задать вопросы по этому проекту

Оставьте свои контктные данные и наш специалист перезвонит Вам в течение 15-ти минут

Задать вопрос

[ 3д разрез дома ]

Технология строительства

Пример дома
[ отзывы ]

Что о нас говорят клиенты

видео отзывы фото отзывы
Фото отзыва

Отзыв по строительству дома в Московской области

Фото отзыва

Отзыв семьи Матвеевых

Фото отзыва

Отзыв Королев Д.Н.

Фото отзыва

Отзыв Савельева А.А

Фото отзыва

Отзыв Александра Московская обл., д. Рузино, д. 51

Фото отзыва

Отзыв Королева Д. Н.

Фото отзыва

Отзыв о строительстве дома из бруса компанией "Кострома-Терем" от заказчика Минеевой Ольги Ив.

Фото отзыва

Отзыв о строительстве брусового дома 8х9 по проекту ДБ-49

Фото отзыва

Отзыв о строительстве дома из бруса в Дзержинец

Фото отзыва

Отзыв по отделке дома под ключ в М.О. Барыбино

Фото отзыва

Отзыв о строительстве дома из профилированного бруса по проекту ДБ-32

Фото отзыва

Отзыв о строительстве дома из бруса по проекту ДБ-20

Фото отзыва

Отзыв по строительству дома ДБ-220

Фото отзыва

Отзыв о строительстве дома из профилированного бруса

Фото отзыва

Отзыв о строительстве дома из бруса

Фото отзыва

Отзыв о строительстве дома из бруса по проекту ДБ-2

Фото отзыва

Отзыв о строительстве дома из бруса

Фото отзыва

Отзыв о строительстве дома из бруса по проекту ДБ-32

Фото отзыва

Отзыв о строительстве дома из бруса Исаева П.Н. Владимирская область д. Якушево

Фото отзыва

Отзыв о строительстве бани из бревна

Фото отзыва

Отзыв о строительстве дома из бруса семьи Кузнецовых МО Красногорский район д. Опалиха

Фото отзыва

Отзыв о строительстве дома из бруса Толмачевых МО Одинцовский район д. Дубки

Фото отзыва

Отзыв по отделке дома ДБ-17 "под ключ"

Фото отзыва

Отзыв Головко В.П.

Фото отзыва

Отзыв семьи Давыдовых из деревни Переславичи

Фото отзыва

Отзыв семьи Давыдовых из деревни Переславичи

Фото отзыва

Отзыв по проекту ДБ-158

Фото отзыва

Отзыв Рощупкина И.Л.

Фото отзыва

Отзыв о строительстве дома по проекту ДБ-52

Фото отзыва

Отзыв о работе строительной компании "Кострома Терем"

Для нас было очень важно оптимальное соотношение "цена-качество", соблюдение всех сроков работ, четко составленный договор, качество профильного сруба

Фото отзыва

Отзыв по строительству дома в Московской области

Фото отзыва

Отзыв семьи Матвеевых

Фото отзыва

Отзыв Королев Д.Н.

Фото отзыва

Отзыв Савельева А.А

Фото отзыва

Отзыв Александра Московская обл., д. Рузино, д. 51

Фото отзыва

Отзыв Королева Д. Н.

Фото отзыва

Отзыв о строительстве дома из бруса компанией "Кострома-Терем" от заказчика Минеевой Ольги Ив.

Фото отзыва

Отзыв о строительстве брусового дома 8х9 по проекту ДБ-49

Фото отзыва

Отзыв о строительстве дома из бруса в Дзержинец

Фото отзыва

Отзыв по отделке дома под ключ в М.О. Барыбино

Фото отзыва

Отзыв о строительстве дома из профилированного бруса по проекту ДБ-32

Фото отзыва

Отзыв о строительстве дома из бруса по проекту ДБ-20

Фото отзыва

Отзыв по строительству дома ДБ-220

Фото отзыва

Отзыв о строительстве дома из профилированного бруса

Фото отзыва

Отзыв о строительстве дома из бруса

Фото отзыва

Отзыв о строительстве дома из бруса по проекту ДБ-2

Фото отзыва

Отзыв о строительстве дома из бруса

Фото отзыва

Отзыв о строительстве дома из бруса по проекту ДБ-32

Фото отзыва

Отзыв о строительстве дома из бруса Исаева П.Н. Владимирская область д. Якушево

Фото отзыва

Отзыв о строительстве бани из бревна

Фото отзыва

Отзыв о строительстве дома из бруса семьи Кузнецовых МО Красногорский район д. Опалиха

Фото отзыва

Отзыв о строительстве дома из бруса Толмачевых МО Одинцовский район д. Дубки

Фото отзыва

Отзыв по отделке дома ДБ-17 "под ключ"

Фото отзыва

Отзыв Головко В.П.

Фото отзыва

Отзыв семьи Давыдовых из деревни Переславичи

Фото отзыва

Отзыв семьи Давыдовых из деревни Переславичи

Фото отзыва

Отзыв по проекту ДБ-158

Фото отзыва

Отзыв Рощупкина И.Л.

Фото отзыва

Отзыв о строительстве дома по проекту ДБ-52

Фото отзыва

Отзыв о работе строительной компании "Кострома Терем"

Для нас было очень важно оптимальное соотношение "цена-качество", соблюдение всех сроков работ, четко составленный договор, качество профильного сруба

Фото отзыва

Отзыв по строительству дома в Московской области

Фото отзыва

Отзыв семьи Матвеевых

Фото отзыва

Отзыв Королев Д.Н.

Фото отзыва

Отзыв Савельева А.А

Фото отзыва

Отзыв Александра Московская обл., д. Рузино, д. 51

Фото отзыва

Отзыв Королева Д. Н.

Фото отзыва

Отзыв о строительстве дома из бруса компанией "Кострома-Терем" от заказчика Минеевой Ольги Ив.

Фото отзыва

Отзыв о строительстве брусового дома 8х9 по проекту ДБ-49

Фото отзыва

Отзыв о строительстве дома из бруса в Дзержинец

Фото отзыва

Отзыв по отделке дома под ключ в М.О. Барыбино

Фото отзыва

Отзыв о строительстве дома из профилированного бруса по проекту ДБ-32

Фото отзыва

Отзыв о строительстве дома из бруса по проекту ДБ-20

Фото отзыва

Отзыв по строительству дома ДБ-220

Фото отзыва

Отзыв о строительстве дома из профилированного бруса

Фото отзыва

Отзыв о строительстве дома из бруса

Фото отзыва

Отзыв о строительстве дома из бруса по проекту ДБ-2

Фото отзыва

Отзыв о строительстве дома из бруса

Фото отзыва

Отзыв о строительстве дома из бруса по проекту ДБ-32

Фото отзыва

Отзыв о строительстве дома из бруса Исаева П.Н. Владимирская область д. Якушево

Фото отзыва

Отзыв о строительстве бани из бревна

Фото отзыва

Отзыв о строительстве дома из бруса семьи Кузнецовых МО Красногорский район д. Опалиха

Фото отзыва

Отзыв о строительстве дома из бруса Толмачевых МО Одинцовский район д. Дубки

Фото отзыва

Отзыв по отделке дома ДБ-17 "под ключ"

Фото отзыва

Отзыв Головко В.П.

Фото отзыва

Отзыв семьи Давыдовых из деревни Переславичи

Фото отзыва

Отзыв семьи Давыдовых из деревни Переславичи

Фото отзыва

Отзыв по проекту ДБ-158

Фото отзыва

Отзыв Рощупкина И.Л.

Фото отзыва

Отзыв о строительстве дома по проекту ДБ-52

Фото отзыва

Отзыв о работе строительной компании "Кострома Терем"

Для нас было очень важно оптимальное соотношение "цена-качество", соблюдение всех сроков работ, четко составленный договор, качество профильного сруба

Фото отзыва

Отзыв по строительству дома в Московской области

Фото отзыва

Отзыв семьи Матвеевых

Фото отзыва

Отзыв Королев Д.Н.

Фото отзыва

Отзыв Савельева А.А

Фото отзыва

Отзыв Александра Московская обл., д. Рузино, д. 51

Фото отзыва

Отзыв Королева Д. Н.

Фото отзыва

Отзыв о строительстве дома из бруса компанией "Кострома-Терем" от заказчика Минеевой Ольги Ив.

Фото отзыва

Отзыв о строительстве брусового дома 8х9 по проекту ДБ-49

Фото отзыва

Отзыв о строительстве дома из бруса в Дзержинец

Фото отзыва

Отзыв по отделке дома под ключ в М.О. Барыбино

Фото отзыва

Отзыв о строительстве дома из профилированного бруса по проекту ДБ-32

Фото отзыва

Отзыв о строительстве дома из бруса по проекту ДБ-20

Фото отзыва

Отзыв по строительству дома ДБ-220

Фото отзыва

Отзыв о строительстве дома из профилированного бруса

Фото отзыва

Отзыв о строительстве дома из бруса

Фото отзыва

Отзыв о строительстве дома из бруса по проекту ДБ-2

Фото отзыва

Отзыв о строительстве дома из бруса

Фото отзыва

Отзыв о строительстве дома из бруса по проекту ДБ-32

Фото отзыва

Отзыв о строительстве дома из бруса Исаева П.Н. Владимирская область д. Якушево

Фото отзыва

Отзыв о строительстве бани из бревна

Фото отзыва

Отзыв о строительстве дома из бруса семьи Кузнецовых МО Красногорский район д. Опалиха

Фото отзыва

Отзыв о строительстве дома из бруса Толмачевых МО Одинцовский район д. Дубки

Фото отзыва

Отзыв по отделке дома ДБ-17 "под ключ"

Фото отзыва

Отзыв Головко В.П.

Фото отзыва

Отзыв семьи Давыдовых из деревни Переславичи

Фото отзыва

Отзыв семьи Давыдовых из деревни Переславичи

Фото отзыва

Отзыв по проекту ДБ-158

Фото отзыва

Отзыв Рощупкина И.Л.

Фото отзыва

Отзыв о строительстве дома по проекту ДБ-52

Фото отзыва

Отзыв о работе строительной компании "Кострома Терем"

Для нас было очень важно оптимальное соотношение "цена-качество", соблюдение всех сроков работ, четко составленный договор, качество профильного сруба

Фото отзыва

Заголовок

предлагает простое решение проблемы ‒ заказать деревянный дом из бруса или оцилиндрованного бревна под ключ по цене ниже средней рыночной. У нас есть множество готовых проектов деревянных домов – как из различных видов бруса.

Фото отзыва

Заголовок

предлагает простое решение проблемы ‒ заказать деревянный дом из бруса или оцилиндрованного бревна под ключ по цене ниже средней рыночной. У нас есть множество готовых проектов деревянных домов – как из различных видов бруса.

Фото отзыва

Заголовок

предлагает простое решение проблемы ‒ заказать деревянный дом из бруса или оцилиндрованного бревна под ключ по цене ниже средней рыночной. У нас есть множество готовых проектов деревянных домов – как из различных видов бруса.

Фото отзыва

Заголовок

предлагает простое решение проблемы ‒ заказать деревянный дом из бруса или оцилиндрованного бревна под ключ по цене ниже средней рыночной. У нас есть множество готовых проектов деревянных домов – как из различных видов бруса.

Фото отзыва

Заголовок

предлагает простое решение проблемы ‒ заказать деревянный дом из бруса или оцилиндрованного бревна под ключ по цене ниже средней рыночной. У нас есть множество готовых проектов деревянных домов – как из различных видов бруса.

Фото отзыва

Заголовок

предлагает простое решение проблемы ‒ заказать деревянный дом из бруса или оцилиндрованного бревна под ключ по цене ниже средней рыночной. У нас есть множество готовых проектов деревянных домов – как из различных видов бруса.

[ похожие проекты ]
Смотрите также похожие проекты
Фото проекта Проект дома ДБ-185
[ 6x8 Размеры дома ]
[ 86.5 м2 площадь дома ]
Фото проекта Проект дома ДБ-185
[ 6x8 Размеры дома ]
[ 86.5 м2 площадь дома ]
Фото проекта Проект дома ДБ-185
[ 6x8 Размеры дома ]
[ 86.5 м2 площадь дома ]
Иконка
Собственное производство полного цикла
Иконка
Квалифицированные бригады
мастеров
Иконка
Строим
под ключ
круглый год
Иконка
Используем новейшие
технологии в строительстве с соблюдением традиций
Иконка
Проектирование, индивидуальный подход к заказчику
Иконка
Гарантия качества
25
лет на рынке
С 1999 года возводим дома для наших клиентов
>970
объектов построено
Каждый месяц мы вводим в эксплуатацию новые дома
>50
сотрудников
Только лучшие талантливые кадры, которых цени
4
направления
Наши проекты - лицо и визитная карточка на рынке ИЖС
[ вопросы и ответы ]

Вы спрашиваете — мы отвечаем

Где находится ваше производство?

Производство находится на севере Костромской области, г. Чухлома, цех деревопереработки Нестерово (Вы можете посетить наше производство и получить скидку на строительство дома).

В каких регионах вы строите дома?

Мы строим деревянные дома по всей территории центральной России, а так же Югу и Северо-Западу.

С чего начать строительство дома?

Начните с выбора проекта, просто позвоните нам по номеру 89109225525 и наш специалист подберет подходящий именно Вам вариант и ответит на все технические вопросы.

Можно ли вносить изменения в ваши проекты?

В любой из наших проектов можно внести необходимые изменения: сместить/ убрать/добавить перегородки, окна, двери, изменить высоты и комплектацию.

Можете построить дом по моему проекту?

Да, конечно. Можете прислать свой проект на электронную почту kostromaterem@yandex.ru со всеми пожеланиями, мы сделаем расчет стоимости и выберем удобное для Вас время строительства.

Вы строите под ключ или под усадку?

Все дома мы строим под ключ. Дома по каркасной технологии строятся под ключ сразу, дома из профилированного бруса и оцилиндрованного бревна строятся с соблюдением сроков усадки дома, после которой делается чистовая отделка под ключ.

В какое время года лучше строить дом?

Мы строим деревянные дома круглый год. Единственное ограничение по строительству, это изготовление бетонного фундамента при температурах ниже -5 С. Остальные типы фундаментов монтируются круглогодично, как и сами дома.

Сколько времени занимает строительство дома?

Строительство дома длится от 14 дней до двух месяцев, в зависимости от величины и сложности проекта.

Какие породы дерева вы используете в строительстве?

Древесина хвойных пород: ель, сосна, лиственница, севера Костромской области.

По какой технологии вы строите дома?

Мы строим деревянные дома как по каркасной технологии, так и из профилированного бруса и оцилиндрованного бревна, с применением заводской нарезки чаш, крепления на пружинный узел СИЛА, межвенцового утеплителя политерм и других технологических решений, применяемых в деревянном домостроении. Совмещая технологии и традиции в единое целое.

Вы строите дома из бруса камерной сушки?

Да, мы строим дома из материалов камерной сушки. Сушка производится в конвективных сушильных камерах фирмы KATRES.

Откуда ваши бригады?

Все наши строители это коренные костромичи с большим опытом работы по возведению и отделке деревянных домов, многие не в первом поколении.

Где будет проживать строительная бригада?

Если Вы не можете предоставить бытовку для проживания строительной бригады, то мы привезем материалы и самостоятельно изготовим бытовку, которая впоследствии останется на участке, либо можем воспользоваться услугой арендной бытовки.

Возможно ли строительство, если на участке нет электричества?

Если на участке нет электричества, то для обеспечения электроэнергией мы используем собственные электрогенераторы. Доплачивать за это ничего не нужно.

Вы работаете с материнским капиталом?

Мы работаем с материнским капиталом.

Как происходит оплата?

Оплата происходит поэтапно, по факту выполненных работ. Все этапы прописываются в договоре на строительство.

Какую гарантию вы предоставляете?

Мы уверены в качестве наших материалов и выполняемых работ. Гарантия на силовой каркас и кровлю 24 месяца, на строительство дома под ключ 5 лет. Гарантийные обязательства фиксируются в договоре.

Как сделать заказ дома в вашей компании?

Просто позвоните нам по тел. 89109225525 (WhatsApp, Telegramm) или напишите на электронную почту kostromaterem@yandex.ru. Выезд специалиста для заключения договора в удобное для Вас место и время бесплатно.