17%
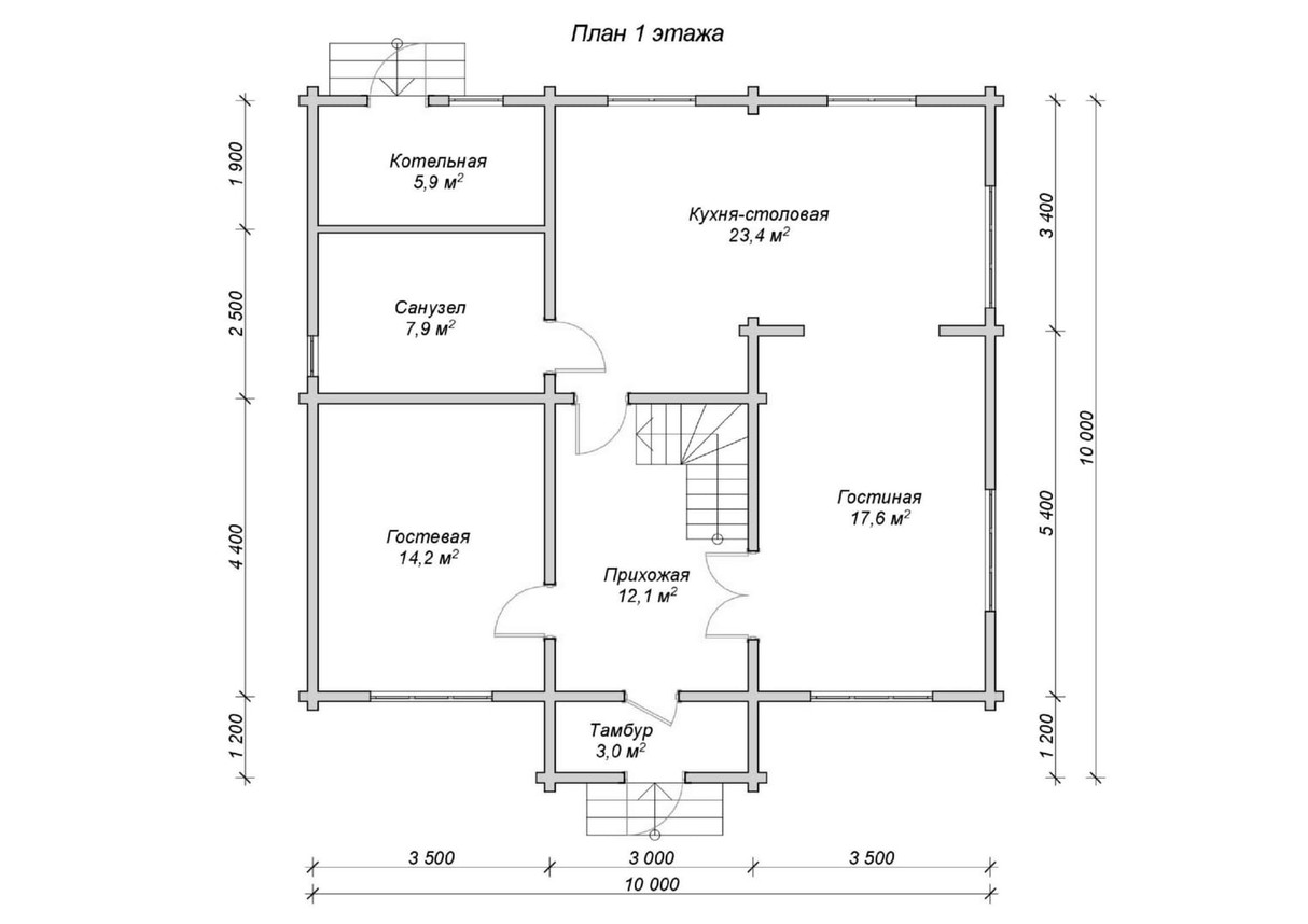
Дом из бруса КБ-12
Хотите изменить планировку?
Это совсем просто! Свяжитесь с нашим специалистом и на основании Ваших идей он создаст индивидуальные планировки.
Изменить планировкусо скидкой
Выбранная комплектация
| «ТЕПЛЫЙ КОНТУР» | «ПОД КЛЮЧ» | «УЛУЧШЕННАЯ ПОД УСАДКУ» |
| 1. ПРОЕКТИРОВАНИЕ: | 1. ПРОЕКТИРОВАНИЕ: | 1. ПРОЕКТИРОВАНИЕ: |
| 1.1. ПРОЕКТИРОВАНИЕ ДОМА. | 1.1. ПРОЕКТИРОВАНИЕ ДОМА. | 1.1. ПРОЕКТИРОВАНИЕ ДОМА. |
| 1.2. 3D-ВИЗУАЛИЗАЦИЯ ДОМА. | 1.2. 3D-ВИЗУАЛИЗАЦИЯ ДОМА. | 1.2. 3D-ВИЗУАЛИЗАЦИЯ ДОМА. |
| 1.3. Высота 1 этаж – 2,70 метра. Высота 2 этаж – 2,50 метра. АТТИКОВАЯ СТЕНА – 1,20-1,50 метра. |
1.3. Высота 1 этаж – 2,70 метра. Высота 2 этаж – 2,50 метра. АТТИКОВАЯ СТЕНА – 1,20-1,50 метра. |
1.3. Высота 1 этаж – 2,70 метра. Высота 2 этаж – 2,50 метра. АТТИКОВАЯ СТЕНА – 1,20-1,50 метра. |
| 2. ФУНДАМЕНТ: | 2. ФУНДАМЕНТ: | 2. ФУНДАМЕНТ: |
| 2.0. Свой фундамент | 2.0. Свой фундамент | 2.0. Свой фундамент |
| 2.1. СВАЙНО-ВИНТОВОЙ – 108х2500 мм. | 2.1. СВАЙНО-ВИНТОВОЙ – 108х2500 мм. | 2.1. СВАЙНО-ВИНТОВОЙ – 108х2500 мм. |
| 2.2. Ж/Б-СВАЙНЫЙ – 150х150х3000 мм. | 2.2. Ж/Б-СВАЙНЫЙ – 150х150х3000 мм. | 2.2. Ж/Б-СВАЙНЫЙ – 150х150х3000 мм. |
| 2.3.ЛЕНТОЧНЫЙ ФУНДАМЕНТ - 400х1000 ММ | 2.3 ЛЕНТОЧНЫЙ ФУНДАМЕНТ - 400х1000 ММ | 2.3 ЛЕНТОЧНЫЙ ФУНДАМЕНТ - 400х1000 ММ |
| 2.4. МОНОЛИТНАЯ ПЛИТА | 2.4. МОНОЛИТНАЯ ПЛИТА | 2.4. МОНОЛИТНАЯ ПЛИТА |
| 2.3. ГИДРОИЗОЛЯЦИЯ – гидроизол 2 слоя. | 2.3. ГИДРОИЗОЛЯЦИЯ – гидроизол 2 слоя. | 2.3. ГИДРОИЗОЛЯЦИЯ – гидроизол 2 слоя. |
| 3. ОБВЯЗКА: | 3. ОБВЯЗКА: | 3. ОБВЯЗКА: |
| 3.1. БАЛКА – 195х195 мм строганная сухая. Обработка BIOSAT | 3.1. БАЛКА – 195х195 мм строганная сухая. Обработка BIOSAT | 3.1. БАЛКА – 195х195 мм строганная сухая. Обработка BIOSAT |
| 4. СТЕНЫ ОСНОВНЫЕ 1 и 2 этаж: | 4. СТЕНЫ ОСНОВНЫЕ 1 и 2 этаж: | 4. СТЕНЫ ОСНОВНЫЕ 1 и 2 этаж: |
| 4.1. КЛЕЕНЫЙ БРУС 140Х200 мм, заводская нарезка чаш. | 4.1. КЛЕЕНЫЙ БРУС 140Х200 мм, заводская нарезка чаш. | 4.1. Нет |
| 4.2. Нет | 4.2. Нет | 4.2. ПРОФИЛИРОВАННЫЙ БРУС МАССИВ 140Х140 мм, заводская нарезка чаш. Сборка на пружинный узел "СИЛА" |
| 4.3. КЛЕЕНЫЙ БРУС 190Х200 мм, заводская нарезка чаш. | 4.3. КЛЕЕНЫЙ БРУС 190Х200 мм, заводская нарезка чаш. | 4.3. Нет |
| 4.4. Нет | 4.4. Нет | 4.4. ПРОФИЛИРОВАННЫЙ БРУС МАССИВ 140Х190 мм, заводская нарезка чаш. Сборка на пружинный узел "СИЛА" |
| 5. СТЕНЫ ВНУТРЕННИЕ 1 и 2 эт: | 5. СТЕНЫ ВНУТРЕННИЕ 1 и 2 эт: | 5. СТЕНЫ ВНУТРЕННИЕ 1 и 2 эт: |
| 5.1. КЛЕЕНЫЙ БРУС 140Х200 мм, заводская нарезка чаш. | 5.1. КЛЕЕНЫЙ БРУС 140Х200 мм, заводская нарезка чаш. | 5.1. Нет |
| 5.2. Нет | 5.2. Нет | 5.2. ПРОФИЛИРОВАННЫЙ БРУС МАССИВ 140Х140 мм, заводская нарезка чаш. |
| 5.3. КЛЕЕНЫЙ БРУС 190Х200 мм, заводская нарезка чаш. | 5.3. КЛЕЕНЫЙ БРУС 190Х200 мм, заводская нарезка чаш. | 5.3. Нет |
| 5.4. Нет | 5.4. Нет | 5.4. ПРОФИЛИРОВАННЫЙ БРУС МАССИВ 140Х190 мм, заводская нарезка чаш. |
| 6. ПОЛЫ 1 и 2 эт: | 6. ПОЛЫ 1 и 2 эт: | 6. ПОЛЫ 1 и 2 эт: |
| 6.1. ЛАГИ усиленные – Доска 45х195 мм(брус 95х195 мм) строганная сухая через 590 мм (определяется расчетом). Обработка BIOSATT | 6.1. ЛАГИ усиленные – Доска 45х195 мм(брус 95х195 мм) строганная сухая через 590 мм (определяется расчетом). Обработка BIOSAT | 6.1. ЛАГИ усиленные – Доска 45х195 мм(брус 95х195 мм) строганная сухая через 590 мм (определяется расчетом). Обработка BIOSAT |
| 6.2. УТЕПЛЕНИЕ ПОЛЫ 1 этаж – 200 мм ROCKWOOL, ветрозащита ИЗОСПАН, пароизоляция ИЗОСПАН. | 6.2. УТЕПЛЕНИЕ ПОЛЫ 1 этаж – 200 мм ROCKWOOL, ветрозащита ИЗОСПАН, пароизоляция ИЗОСПАН. | 6.2. УТЕПЛЕНИЕ ПОЛЫ 1 этаж – нет. |
| 6.3. ПОЛЫ черновые 1 этаж – Доска 25х150 мм сухая сплошные. | 6.3. ПОЛЫ черновые 1 этаж – Доска 25х150 мм сухая сплошные. | 6.3. ПОЛЫ черновые 1 этаж – Доска 25х150 мм сухая сплошные. |
| 6.4. ПОЛЫ 1 и 2 этаж – нет. | 6.4. ПОЛЫ 1 и 2 этаж – Шпунтованная доска 35х140 мм (АВ) сухая с плинтусами. | 6.4. ПОЛЫ 1 и 2 этаж – нет. |
| 7. ПОТОЛКИ 1 и 2 эт: | 7. ПОТОЛКИ 1 и 2 эт: | 7. ПОТОЛКИ 1 и 2 эт: |
| 7.1. ЛАГИ усиленные – Доска 45х195 мм(брус 95х195 мм) строганная сухая через 590 мм (определяется расчетом). Обработка BIOSAT. | 7.1. ЛАГИ усиленные – Доска 45х195 мм(брус 95х195 мм) строганная сухая через 590 мм (определяется расчетом). Обработка BIOSAT | 7.1. ЛАГИ усиленные – Доска 45х195 мм(брус 95х195 мм) строганная сухая через 590 мм (определяется расчетом). Обработка BIOSAT |
| 7.2. УТЕПЛЕНИЕ ПОТОЛКИ 1 и 2 этаж – 200 мм ROCKWOOL, ветрозащита ИЗОСПАН, пароизоляция ИЗОСПАН. | 7.2. УТЕПЛЕНИЕ ПОТОЛКИ 1 и 2 этаж – 200 мм ROCKWOOL, ветрозащита ИЗОСПАН, пароизоляция ИЗОСПАН. | 7.2. УТЕПЛЕНИЕ ПОТОЛКИ 1 и 2 этаж – нет. |
| 7.3. ПОТОЛКИ черновые 1 или 2 этаж – Доска 25х150 мм сухая через 100 мм. | 7.3. ПОТОЛКИ черновые 1 или 2 этаж – нет. | 7.3. ПОТОЛКИ черновые 1 или 2 этаж – нет. |
| 7.4. ПОТОЛКИ 1 и 2 этаж – нет. | 7.4. ПОТОЛКИ 1 и 2 этаж – Вагонка 16х90 мм (АВ) сухая с плинтусами. | 7.4. ПОТОЛКИ 1 и 2 этаж – нет. |
| 8. КРЫША: | 8. КРЫША: | 8. КРЫША: |
| 8.0. КРОВЛЯ – Рубероид | 8.0. КРОВЛЯ – Рубероид | 8.0. КРОВЛЯ – Рубероид |
| 8.1. КРОВЛЯ – МЕТАЛЛОЧЕРЕПИЦА GRAND LINE CLASSIC, толщина 0,50 мм. | 8.1. КРОВЛЯ – МЕТАЛЛОЧЕРЕПИЦА GRAND LINE CLASSIC, толщина 0,50 мм. | 8.1. КРОВЛЯ – МЕТАЛЛОЧЕРЕПИЦА GRAND LINE CLASSIC, толщина 0,50 мм. |
| 8.2. КРОВЛЯ- ГИБКАЯ ЧЕРЕПИЦА ШИНГЛАСС | 8.2. КРОВЛЯ- ГИБКАЯ ЧЕРЕПИЦА ШИНГЛАСС | 8.2. КРОВЛЯ- ГИБКАЯ ЧЕРЕПИЦА ШИНГЛАСС |
| 8.3. КРОВЛЯ- ОНДУЛИН | 8.3. КРОВЛЯ- ОНДУЛИН | 8.3. КРОВЛЯ- ОНДУЛИН |
| 8.4. СТРОПИЛЬНАЯ СИСТЕМА усиленная – Доска 45х195 мм строганная сухая через 590 мм плюс брусок 45х45 мм для вент зазора. | 8.4. СТРОПИЛЬНАЯ СИСТЕМА усиленная – Доска 45х195 мм строганная сухая через 590 мм плюс брусок 45х45 мм для вент зазора. | 8.4. СТРОПИЛЬНАЯ СИСТЕМА усиленная – Доска 45х195 мм строганная сухая через 590 мм плюс брусок 45х45 мм для вент зазора. |
| 8.5. ОБРЕШЕТКА – Доска 25х100 мм сухая, с установелнным шагом. | 8.5. ОБРЕШЕТКА – Доска 25х100 мм сухая, с установелнным шагом. | 8.5. ОБРЕШЕТКА – Доска 25х100 мм сухая, с установелнным шагом. |
| 8.6. ГИДРО-ВЕТРОЗАЩИТА – Гидро-ветрозащитная мембрана ИЗОСПАН с вентилируемым зазором. | 8.6. ГИДРО-ВЕТРОЗАЩИТА – Гидро-ветрозащитная мембрана ИЗОСПАН с вентилируемым зазором. | 8.6. ГИДРО-ВЕТРОЗАЩИТА – Гидро-ветрозащитная мембрана ИЗОСПАН с вентилируемым зазором. |
| 8.7. СВЕСЫ КРОВЛИ – нет. | 8.7. СВЕСЫ КРОВЛИ – Планкен 20х90 мм сухой (АВ). | 8.7. СВЕСЫ КРОВЛИ – нет. |
| 9. ОКНА: | 9. ОКНА: | 9. ОКНА: |
| 9.1. ОКНА ПВХ REHAU (профиль 3-х камерный, стеклопакет 2-х камерный – 3 стекла). Водоотливы, подоконник, наличники. | 9.1. ОКНА ПВХ REHAU (профиль 3-х камерный, стеклопакет 2-х камерный – 3 стекла). Водоотливы, подоконник, наличники. | 9.1. ОКНА - нет. |
| 10. ДВЕРИ: | 10. ДВЕРИ: | 10. ДВЕРИ: |
| 10.1. ВХОДНАЯ – металлическая, утепленная, с терморазрывом, производство РФ.Наличники. | 10.1. ВХОДНАЯ – металлическая, утепленная, с терморазрывом, производство РФ.Наличники. | 10.1. ВХОДНАЯ - нет . |
| 10.2. МЕЖКОМНАТНЫЕ – Нет. | 10.2. МЕЖКОМНАТНЫЕ – деревянные,филенчатые, ламинированные. Наличники. | 10.2. МЕЖКОМНАТНЫЕ – Нет. |
| 11. МЕЖЭТАЖНАЯ ЛЕСТНИЦА: | 11. МЕЖЭТАЖНАЯ ЛЕСТНИЦА: | 11. МЕЖЭТАЖНАЯ ЛЕСТНИЦА: |
| 11.1. ЛЕСТНИЦА ТЕХНИЧЕСКАЯ – одномаршевая, доска 50х200 мм строганная сухая. | 11.1. ЛЕСТНИЦА ТЕХНИЧЕСКАЯ – одномаршевая, доска 50х200 мм строганная сухая. | 11.1. ЛЕСТНИЦА ТЕХНИЧЕСКАЯ – нет. |
| 12. ТЕРРАСА, КРЫЛЬЦО, БАЛКОН: | 12. ТЕРРАСА, КРЫЛЬЦО, БАЛКОН: | 12. ТЕРРАСА, КРЫЛЬЦО, БАЛКОН: |
| 12.1. КАРКАС – обвязка нижняя, обвязка верхняя, стойки, балки, стропила, обрешетка, кровля, свесы кровли. | 12.1. КАРКАС – обвязка нижняя, обвязка верхняя, стойки, балки, стропила, обрешетка, кровля, свесы кровли. | 12.1. КАРКАС – обвязка нижняя, обвязка верхняя, стойки, балки, стропила, обрешетка, кровля, свесы кровли. |
| 12.2. ПОЛЫ – Нет. | 12.2. ПОЛЫ – Террасная доска 35х140 мм (АВ) сухая. | 12.2. ПОЛЫ – Нет. |
| 12.3. ПОТОЛКИ – Нет. | 12.3. ПОТОЛКИ Планкен 20х90 мм (АВ) сухой. | 12.3. ПОТОЛКИ – Нет. |
| 12.4. ОГРАЖДЕНИЕ – Нет. | 12.4. ОГРАЖДЕНИЕ – Планкен 20х90 мм (АВ) сухой. | 12.4. ОГРАЖДЕНИЕ – Нет. |
| 13. ДОСТАВКА: | 13. ДОСТАВКА: | 13. ДОСТАВКА: |
| 13.1. ДОСТАВКА – Рассчитывается индивидуально. | 13.1. ДОСТАВКА – Рассчитывается индивидуально. | 13.1. ДОСТАВКА – Рассчитывается индивидуально. |
| 14. МОНТАЖ: | 14. МОНТАЖ: | 14. МОНТАЖ: |
| 14.1. МОНТАЖ – Сборка дома на участке заказчика. | 14.1. МОНТАЖ – Сборка дома на участке заказчика. | 14.1. МОНТАЖ – Сборка дома на участке заказчика. |
Всего за 5 шагов у вас появится свой дом
-
Выбор проекта
-
Заключение договора
-
Производство комплекта
-
Доставка и сборка
-
Сдача объекта
Задать вопросы по этому проекту
Оставьте свои контктные данные и наш специалист перезвонит Вам в течение 15-ти минут
Технология строительства
Что о нас говорят клиенты
мастеров
под ключ
круглый год
технологии в строительстве с соблюдением традиций
Вы спрашиваете — мы отвечаем
Производство находится на севере Костромской области, г. Чухлома, цех деревопереработки Нестерово (Вы можете посетить наше производство и получить скидку на строительство дома).
Мы строим деревянные дома по всей территории центральной России, а так же Югу и Северо-Западу.
Начните с выбора проекта, просто позвоните нам по номеру 89109225525 и наш специалист подберет подходящий именно Вам вариант и ответит на все технические вопросы.
В любой из наших проектов можно внести необходимые изменения: сместить/ убрать/добавить перегородки, окна, двери, изменить высоты и комплектацию.
Да, конечно. Можете прислать свой проект на электронную почту kostromaterem@yandex.ru со всеми пожеланиями, мы сделаем расчет стоимости и выберем удобное для Вас время строительства.
Все дома мы строим под ключ. Дома по каркасной технологии строятся под ключ сразу, дома из профилированного бруса и оцилиндрованного бревна строятся с соблюдением сроков усадки дома, после которой делается чистовая отделка под ключ.
Мы строим деревянные дома круглый год. Единственное ограничение по строительству, это изготовление бетонного фундамента при температурах ниже -5 С. Остальные типы фундаментов монтируются круглогодично, как и сами дома.
Строительство дома длится от 14 дней до двух месяцев, в зависимости от величины и сложности проекта.
Древесина хвойных пород: ель, сосна, лиственница, севера Костромской области.
Мы строим деревянные дома как по каркасной технологии, так и из профилированного бруса и оцилиндрованного бревна, с применением заводской нарезки чаш, крепления на пружинный узел СИЛА, межвенцового утеплителя политерм и других технологических решений, применяемых в деревянном домостроении. Совмещая технологии и традиции в единое целое.
Да, мы строим дома из материалов камерной сушки. Сушка производится в конвективных сушильных камерах фирмы KATRES.
Все наши строители это коренные костромичи с большим опытом работы по возведению и отделке деревянных домов, многие не в первом поколении.
Если Вы не можете предоставить бытовку для проживания строительной бригады, то мы привезем материалы и самостоятельно изготовим бытовку, которая впоследствии останется на участке, либо можем воспользоваться услугой арендной бытовки.
Если на участке нет электричества, то для обеспечения электроэнергией мы используем собственные электрогенераторы. Доплачивать за это ничего не нужно.
Мы работаем с материнским капиталом.
Оплата происходит поэтапно, по факту выполненных работ. Все этапы прописываются в договоре на строительство.
Мы уверены в качестве наших материалов и выполняемых работ. Гарантия на силовой каркас и кровлю 24 месяца, на строительство дома под ключ 5 лет. Гарантийные обязательства фиксируются в договоре.
Просто позвоните нам по тел. 89109225525 (WhatsApp, Telegramm) или напишите на электронную почту kostromaterem@yandex.ru. Выезд специалиста для заключения договора в удобное для Вас место и время бесплатно.









